SITUAZIONI SEGNALATE
Schede relative a situazioni la cui segnalazione è stata avanzata.
Schede relative a situazioni la cui segnalazione è stata avanzata.

Villa sei/settecentesca ubicata in via san Paolo 5. La villa ricorda vagamente (in piccolo) il palazzo Carignano di Torino. Riferimento catastale F.21 part. n.3-4 e part. Lettera C
Immobile sottoposto a tutela “Not. Min. 13/11/1946 Soprintendenza Beni Architettonici e Paesaggio del Piemonte (Torino)”. Trattasi di una proprietà privata in stato di abbandono. Chiusa.
Si presenta con un corpo centrale di due piani fuori terra sovrastati da un avancorpo semicircolare che racchiude il salone e da due maniche laterali dove erano ubicati gli appartamenti, un salone da ballo e la cappella. I piani sono divisi da cornici piuttosto sbalzate e le finestre da lesene di notevole spessore. La villa è contornata da un alto muro di cinta che delimita un parco in sfacelo. L’attribuzione del disegno della villa viene data al Guarini o alla sua scuola.
Notizie storiche ed artistiche:
Il primo proprietario fu Valeriano Napione da Pinerolo (maggiordomo del principe Emanuele Filiberto).
La villa inizialmente chiamata “Napiona”, venne battezzata, secondo una consuetudine del tempo, dal nome della carica tenuta dal proprietario cioè “Maggiordomo”.
Uno dei guai della Villa fu proprio quello d’essere passata in troppe mani, nessuna delle quali volle o potè provvedere ad utilizzare e restaurare convenientemente questo patrimonio.
Bibliografia:
– “Cascine e ville della pianura torinese” di Elisa Gribaudi Rossi – Le Bouquiniste – Torino
Situazione di degrado:
Lo stato attuale è nel degrado più completo con infiltrazioni e conseguente crollo di tetti e solai ora ricoperti da lamiere poggianti su una struttura supportata di tubi metallici in quanto è rimasta per decenni abbandonata ed in mano a vandali ed è stata chiusa la cancellata con posizionamento di un cartello di divieto d’ingresso. All’interno, nonostante l’alto degrado, si possono ancora intravedere tracce di stucchi, decorazioni e i resti di un’ampia scala a chiocciola in legno di pregievole fattura che dal pianterreno porta al piano superiore.
Data: 20/10/2019
Rilevatori: Ugo Biancotto, Sergio Anelli e Valter Bonello
Studio per intervento conservatico (Politecnico di Torino):
– Elisa Bellan, Il progetto di restauro e risanamento conservativo della villa “Il maggiordomo” di Grugliasco: indagine storica e recupero dell’apparato decorativo.
Relatori: Jean Marc Christian Tulliani, Antonio Rava. Politecnico di Torino, Corso di laurea magistrale in Architettura Per Il Restauro E Valorizzazione Del Patrimonio, 2014
Vedi: https://webthesis.biblio.polito.it/3639/
Vedi anche:
– Villa del maggiordomo presentazione
– Villa del Maggiordomo in TorinoStoria 42
– VIVA 155 Il Maggiordomo giugno 2014
– VILLA IL MAGGIORDOMO 17 MAGGIO
Nuovo appello::
Salvate la villa del Maggiordomo: a Grugliasco la copia di Palazzo Carignano che cade in rovina.
Un capolavoro del barocco che desta meraviglia e richiama Palazzo Carignano nelle forme mosse della facciata, nel volume centrale ellittico e nei materiali. E che si trova dove non ti aspetti: non nel centro aulico cittadino e neppure sulle pendici delle colline circostanti, ma nell’area rurale del Gerbido, tra Torino e Grugliasco, poco distante da impianti industriali e capannoni.
E’ una storia incredibile quella della villa Il Maggiordomo, fatta di passaggi di proprietà, ampliamenti e trasformazioni, che vale la pena raccontare. Anche per capire se questa dimora dotata di giardino, che reca tracce di un passato illustre, oggi sorretta da ponteggi e dotata di una copertura provvisoria in lastre metalliche, perché il tetto è andato perduto, possa ancora avere un futuro.
La villa appartiene da qualche decennio a Casa dell’Immacolata, società che fa capo alla famiglia Camerlengo, da tempo attiva in campo sanitario e assistenziale. Da “luogo di delizia” pareva destinata a divenire nei primi anni Duemila residenza sanitaria per anziani, con qualche pretesa di eleganza. Ma i vincoli cui è sottoposta non l’hanno permesso.
Tetti di lamiera, erbacce e ferite dei vandali: così muore la villa del Maggiordomo, gioiello di Guarini.
La villa del Maggiordomo, a Grugliasco, è una copia in sedicesimo di Palazzo Carignano: costruita nello stesso periodo del capolavoro torinese, e con gli stessi materiali, si trova però in condizioni di gravissimo degrado dopo una serie di passaggi di proprietà, tanto da spingere la Soprintendenza a lanciare un appello.
Villa Il Maggiordomo deve il nome al primo proprietario Valeriano Napione, scudiere, gran guardarobiere e maggiordomo di Emanuele Filiberto di Savoia-Carignano: proprio colui che per dare lustro al casato commissionò a Guarino Guarini Palazzo Carignano. E’ probabile che Valeriano, il cui ruolo assomigliava a quello di un primo ministro, abbia voluto rivaleggiare con il suo principe, facendosi erigere tra il 1675 e il 1683 un palazzo che potesse competere almeno in parte con quello torinese.
Ed è probabile pure che abbia incontrato Guarini: non ci sono prove che l’architetto modenese abbia lavorato per lui, ma la sua impronta c’è. Così come pare fondata l’ipotesi che vi abbia messo le mani l’allievo Giovanni Francesco Baroncelli, suo collaboratore a Palazzo Carignano. Gli aspetti più nobili risiedono nelle parti esterne, mentre all’interno, in cui restano scarsi apparti decorativi, spicca la sala centrale dall’andamento curvo, soprelevata di un piano rispetto al resto della costruzione.
“E’ un piccolo capolavoro dell’architettura barocca, che testimonia il riflesso degli edifici centrali della corte nelle ville che sorgevano in parallelo all’esterno della città – dice la soprintendente ad archeologia belle arti e paesaggio Luisa Papotti – La villa si trova in una situazione di rischio: la Soprintendenza ha imposto nel 2010 un ponteggio di protezione e continuato in seguito ad avvertire e richiamare la proprietà affinché si desse da fare per evitare crolli”.
Sull’architettura dell’edificio pesano le vicende che l’hanno vista protagonista. Dopo l’assedio di Torino del 1706, in cui è occupata dalle milizie francesi, passa ai Dellala di Beinasco, tra i cui membri c’è l’architetto Francesco, che aggiunge alla struttura centrale corpi laterali, la cappella e nuove decorazioni. Nel 1905 è acquistata dalla famiglia Peyron, che affida i rifacimenti delle sale all’architetto Carlo Ceppi, autore tra l’altro di una scala elicoidale.
Dal 1928 al 1931 è dei banchieri Sella, subisce danni durante la seconda guerra mondiale, quindi passa ai Della Cha, la cui figlia Marizzina, sposa del principe romano Ladislao Odescalchi, la eredita e poi l’abbandona.
Nel 2014 Comune di Grugliasco, Soprintendenza e proprietari firmano un protocollo per la realizzazione di un polo culturale ed espositivo, destinato anche ai carrozzieri storici che hanno sede nell’area, da Bertone ad Abarth. L’anno prima era iniziata una campagna di restauri affidata ad Antonio Rava, che prosegue fino al 2016: “Con Gianni Bergadano della Soprintendenza – racconta Rava – ci siamo occupati soprattutto degli aspetti conservativi della facciata principale: confrontando le formelle di cotto del cornicione con quelle di Palazzo Carignano ci siamo resi conto che erano le stesse. La villa cresceva dunque in parallelo con l’edificio torinese e il maggiordomo Valeriano aveva probabilmente accesso alle stesse fornaci”.
Della precaria situazione della villa si occupa l’architetto Antonello Sado, che non ha smesso di sperare in futuri utilizzi che facciano rinascere l’edificio: “La proprietà ha sondato la possibilità di concedere il complesso in comodato gratuito a un ente pubblico in cambio di restauri da realizzare con fondi europei. Ma finora non si è fatto vivo nessuno”.
Un appello arriva dalla Soprintendenza: “Siamo preoccupati per un bene di estrema rilevanza, testimone della fase più importante dell’architettura piemontese, che purtroppo subisce anche l’assedio di un ampliamento industriale che il Comune di Grugliaco ha permesso – conclude Luisa Papotti – Un degrado che non può che peggiorare, dato che al momento non c’è nessuna prospettiva di riqualificazione e nuova destinazione”.
Fonte: https://torino.repubblica.it, 1 apr 2021
Bibliografia:
– Elisa Bellan. Il progetto di restauro e risanamento conservativo della villa “Il maggiordomo” di Grugliasco: indagine storica e recupero dell’apparato decorativo. Rel. Jean Marc Christian Tulliani, Antonio Rava. Politecnico di Torino, Corso di laurea magistrale in Architettura Per Il Restauro E Valorizzazione Del Patrimonio, 2014.

Segnalazione inviata: UNIVOCA Villa Maggiordomo, Grugliasco – Segnalazione-signed
Risposte:
– 17 gennaio 2020 dalla Soprintendenza: Risposta Soprintendenza Villa Il Maggiordomo Grugliasco richiesta informazioni nel merito al Comune ed alla proprietà.
Sulla collina di Torino, nascosta da un fitto bosco si trova la storica villa Becker; un edificio elegante ed imponente, dove ha visto nel tempo personaggi famosi; nei suoi saloni avvenivano lussuosi balli, dove vedeva sfarzi, seduzione e voglia di vivere, dove la Torino che contava faceva a gara per poterci partecipare, ma che oggi versa in pessime condizioni…
Vi si arriva per una ripidissima collina in mezzo agli alberi, ortiche, spine e fango, ma arrivati di fronte alla Villa si rimane incantati, perché la vista era esternamente è incredibile.
Una volta dentro, ci si accorge che ogni parete, arco, colonna, statua, bassorilievo o vetrata ha secoli di storia ed una cura artistica veramente rara.
Il piano terra della Villa è intrappolato da un meraviglioso soffitto decorato e coloratissimo ad archi a sesto acuto sorretti da decine di colonne, ed impreziosito da un meraviglioso camino originale.
L’arredo è pressoché inesistente, ad eccezione di un paio di vecchie poltrone rovinate, e in molte delle stanze regna la distruzione più totale ed ignobile.
Salendo la scalinata principale, con una preziosissima ringhiera cesellata ad arte, si giunge al salone principale della Villa, dove le decorazioni delle pareti, dei portoni, delle finestre, del camino ed addirittura del soffitto creano un’atmosfera magica e di nobiltà di altri tempi.
Qui, si racconta che nella prima metà del ‘900 visse per qualche tempo lo scrittore David Herbert Lawrence insieme alla moglie Frida. Proprio qui, scrisse il libro che fece scandalo a quell’epoca e che lo rese celebre, “L’amante di lady Chatterley”.
La sua struttura originaria risale al 1633, appartenuto al Marchese Ludovico San Martino D’Aglié zio di Filippo, esponente di una delle più antiche famiglie della nobiltà piemontese, dove acquistò un terreno in quella zona di Torino, e vi fece costruire la sua residenza.
Ludovico morì proprio in questa dimora nel 1646, che passò di proprietà al nipote Filippo San Martino d’Agliè, anche lui letterato, politico e musicista, dove visse fino al giorno della sua morte, 1667, sepolto al monte dei Cappuccini.
Oggi la villa versa in pessime condizioni: le finestre e porte murate non sono bastate a tenere lontani vandali.
In quattrocento anni di storia la villa è stata più volte sistemata ed adattata in base al mutamento dei gusti di ogni epoca, l’ultimo restauro risale agli inizi del ‘900; in seguito, Villa Becker cadde nell’oblio.
Senza dubbio, l’alone di mistero che aleggia a Villa Becker esercita il suo fascino; non a caso, Dario Argento, da sempre amante di Torino e della sua magia, scelse proprio questa villa disabitata per girare le scene finali del film La Terza Madre, dove si può vedere Asia Argento che entra in questa villa spettrale, splendida e suggestiva senza nessun ritocco scenografico.
Il nome della villa lo deve dall’ultimo proprietario Sir Walter Becker, noto diplomatico, amante dell’Italia, che soggiornò a lungo a Torino; tra le persone che ha ospitato si annovera lo scrittore David Herbert Lawrence.
Vedi:
– Uno scritto sulla villa dimenticata nella collina torinese, oggi nota come Villa BecKer: “Una villa abbandonata e un tavolo che parla“, di Arabella Cifani. Vedi: https://www.repubblica.it/dossier/cultura/arte-mostre-e-fotografia/2021/01/11/news/una_villa_abbandonata_e_un_tavolo_che_parla-282080796/
– Vedi anche: un filmato completo: https://www.youtube.com/watch?v=aM_COgJPGQQ&list=PLHpmB4CTXomhvLDzgV36rDcMf8t2ganAJ&index=45&t=0s è girato da non esperti d’arte e di stili architettonici, per cui si può togliete l’audio e saltate alcune parti.
Galleria immagini di Massimo Palma:
* Soprintendenza: 11/06/2021: sollecito a messa in sicurezza, su progetto proprietà, approvato: Soprintendenza – Villa Becker-segnalazione UNIVOCA
* Risposta dalla Regione Piemonte (6 lug 2021): LetteraUNIVOCA_VillaBecker
* Nostro sollecito in data 29/07/2023: UNIVOCA Villa Becker 29 lug 2023
* Soprintendenza, 28/08/2023: ulteriore sollecito TORINO-Villa Becker-segnalazione UNIVOCA 28 08 2023 da Sopr.
Il castello è situato entro il Parco Regionale della Mandria (strada Bottione). Costruito intorno al 1860 per volere di Re Vittorio Emanuele II come “reposoir “ di caccia è posto al centro di una penisola formata dal lago Grande che lo avvolge completamente.
L’architettura neo-medievale è frutto dell’eclettismo della seconda metà del XIX secolo. Il suo valore più che per l’architettura è dato dalla fiabesca ambientazione e dal punto di vista storico.
Il nucleo centrale originario, caratterizzato da quattro torri di cui due merlate, venne ampliato con la costruzione delle due ali sporgenti rispetto al corpo centrale, dall’architetto Renzo Mongiardino.
Intorno agli anni ’60 del secolo scorso, con la vendita promossa dal marchese Luigi Medici del Vascello, venne acquistato dalla famiglia Bonomi Bolchini che, dopo l’istituzione del parco nel 1995, la vendettero alla Regione Piemonte.
Il giardino, che si presenta con prati all’inglese e zone boschive “disegnate”, fu ideato dal paesaggista Pietro Porcinai.
Le dimensioni del corpo centrale dell’edificio sono di 600×300 m. , mentre comprendendo anche il giardino ed il parco retrostante: 2100x1990m.
Coordinate geografiche: 45.140273 – 7.574950
Lo stato attuale della villa/castello è di degrado generalizzato sia dell’edificio che dell’ambiente circostante; si trova attualmente in pessimo stato a causa dell’abbandono ed assenza totale di manutenzione.
Note:
– La proprietà risulta in capo alla Regione Piemonte, ma, come si vede dal link seguente: https://www.regione.piemonte.it/web/amministrazione/patrimonio/patrimonio-immobiliare/villa-castello-dei-laghi (Normativa correlata->piano delle alienazioni e delle valorizzazioni immobiliari->legge regionale n.9 del 14/05/2015->allegato D), la Villa dei Laghi, sin dal 2015, è stata inserita nel “piano delle alienazioni e delle valorizzazioni immobiliari dei beni regionali“.
– Nel sito ufficiale del Parco (http://www.parks.it/parco.mandria/mappa.interattiva/22.html) si dice: “La costruzione adibita a guardiania è in parte adibita a civile abitazione ed in parte a magazzino, piccolo laboratorio e deposito. La villa è invece disabitata. Se ne prevede un completo recupero come relais chateaux e luogo di rappresentanza regionale, mentre già attualmente gli esterni ospitano eventi culturali. E’ meta di visite guidate, su prenotazione”.
– Invece la costruzione è abbandonata da anni, transennata e quindi non fruibile per alcuna visita guidata; cartelli indicanti “Proprietà Privata” sono posti ai cancelli, come si vede dalle foto n.6 e 8.
Autore: Renato Airasca, Amici dell’Educaatorio della Provvidenza
Sopralluogo ultimo in data 20/09/2020
Bibliografia:
– Francesco Pernice. La Mandria di Venaria: l’appartamento di Vittorio Emanuele II, Celid, 1998
Galleria immagini:
Vedi:
– Villa dei Laghi, storia di una Cenerentola
http://www.piemonteparchi.it/cms/index.php/parchi-piemontesi/item/4513-villa-dei-laghi-storia-di-una-cenerentola con progetto di recupero, da chiedere aggiornamenti.
Vedi lettera Soprintendeza su piano di recupero: Lettera Soprintendenza Villa dei Laghi
Vedi: La villa dei Laghi_compressed – “La Villa dei Laghi” nel Parco della Mandria. Proposta di restauro e rigenerazione architettonica del complesso, Tesi di Laurea Magistrale 2023 del Politecnico di Torino: Russo Gregorio, Scarafia Matteo, Scarpelli Lorenzo.
Tra i secoli XV e XVI nella documentazione presente in vari archivi pubblici e privati è attestata l’esistenza di un piccolo castello in prossimità della riva destra del Torrente Ojtana nel tratto di confine col territorio di Vinovo, denominato Carpeneto. Tale edificio, forse una vecchia casaforte medioevale con torre, risultava rimaneggiato in forme seicentesche con alcuni cascinali attorno.
Leggi tutto nell’allegato: LA LOGGIA Villa Carpeneto
Autore: Gervasio Cambiano – cambianogervasio@gmail.com
Pubblichiamo la scheda relativa al complesso monumentale in località Carpeneto nel comune di La Loggia, opera dello storico locale Gervasio Cambiano. L’importanza della villa e il presente stato di abbandono hanno coinvolto anche il FAI – Fondo Ambiente Italiano che lo ha inserito nella lista dei “Beni del cuore”; analogamente il Comune di La Loggia è interessato alla vicenda del bene che è stato messo in vendita e si pone l’obiettivo di tutelare per la comunità un bene ambientale ed architettonico così importante.
Salviamo il Carpeneto.
“Ho scritto a Sos Monumenti per salvare il borgo del Carpeneto dal degrado, dall’oblio e dal nulla”. Lo storico e scrittore vinovese Gervasio Cambiano racconta il suo ultimo impegno, spiegando: “Il servizio è fornito dall’Univoca (Unione volontari culturali associati) torinese con cui collaboro, una sigla che raccoglie e coordina associazioni culturali di volontariato del territorio e finalizzate alla tutela e valorizzazione del patrimonio storico e culturale”.
La villa Carpeneto, in stile neobarocco, personalizzata da uno stile neoclassico di alta scuola, è in prossimità della riva del torrente Oitana, comune di La Loggia ma confinante con Vinovo. Attorno, il borgo con alcuni cascinali. Dichiarata Monumento nazionale, è di proprietà di una società svizzera, ma disabitata, priva di arredo ed abbandonata dagli anni ’60. c.t.
Info: www.univoca.org da L’Eco del Chisone, 20 dic 2017
Inviata segnalazione il 14 luglio 2018: UNIVOCA Villa Carpeneto La Loggia – Segnalazione-signed
Risposta della Prefettura di Torino in data 30 luglio 2018: Villa Carpeneto – Prefettura Torino
Risposta della Soprintendenza Archeologia Belle Arti e Paesaggio per la Città Metropolitana di Torino in data 31 agost 2018: prot. 143470001 Sopr Villa Carpeneto
Ultime notizie (aprile 2020): la proprietà risulterebbe ancora facente capo alla famiglia dei Rossi di Montelera, che ora hanno domicilio in Svizzera e la villa è in vendita con commissione ad una società immobiliare russa.
Aggiornamento al 7 marzo 2021: Risulta in vendita su internet (organizzazione Mitula) a 2.900.000 €
Aggiornamento al 13 dic 2023: Carpeneto 13 X bre 2023
Aggiornamento a gennaio 2026: La Loggia Villa Carpeneto – gennaio 2026
Bibliografia:
– Giuseppe Accorso. Ipotesi di riuso della villa Carpeneto, La Loggia. Rel. Enrico Moncalvo, Carla Bartolozzi, Andrea Vigetti. Politecnico di Torino, Corso di laurea magistrale in Architettura Per Il Progetto Sostenibile, 2014.
Il toponimo deriva forse da Albanus, nome personale romano; dell’epoca romana resta una tegola con iscrizione funeraria.
Dal X secolo, sotto l’episcopato di Attone, Albano risulta tra le pievi della chiesa vercellese; il possesso al Vescovo di Vercelli fu confermato coi diplomi imperiali di Ottone III (999) e di Federico Barbarossa (1152) fino al 1179, quando una parte venne ceduta al Comune di Vercelli.
Dopo esser stata proprietà di varie famiglie (Tizzoni, Avogadro, de Albano), nel 1335 Albano passò ai Visconti fino al subentrare dei Savoia (1407).
Nel 1621, per volere del duca Carlo Emanuele I, Albano (insieme ad Oldenico e Cascine San Giacomo) fu eretta contea di Mercurio Arborio di Gattinara, gran cancelliere di Carlo V d’Asburgo. Ancor oggi l’edificio del Castello appartiene alla famiglia Arborio di Gattinara.
Secondo gli storici, quando Albano si trovava sotto la dominazione del Comune di Vercelli, era circondato da uno spalto e da un fossato, lungo il quale venivano piantati cespugli spinosi; nel XIV – XV secolo venne edificato un vero e proprio castello.
Alcune notizie sullo stato del fabbricato nel 1671 ed in particolare l’esistenza di case rovinate fuori dal castello verso est, potrebbero attestare l’esistenza di un abitato a ridosso del perimetro fortificato, probabilmente un ricetto, la cui esistenza, allo stato attuale delle conoscenze, non è però documentabile.
Il castello venne ristrutturato nel XIX secolo, ma conserva parti antiche risalenti al XV secolo.
Di fronte alla chiesa parrocchiale ottocentesca si apre la via XX Settembre, che costeggia il muro esterno del castello. Il muro di cinta del giardino è di recente costruzione, ma vi sono ancora tratti delle cortine medievali.
Le parti antiche dell’edificio sono la bella torre d’ingresso a pianta quadrata, risalente alla metà del XV secolo, sopraelevata nel Seicento con una struttura che incorpora gli originari merli bifidi (ancora riconoscibili), fornita di torretta angolare cilindrica.
A testimonianza dell’importanza dell’antico edificio signorile, fonti documentarie attestano ancora nel Seicento la presenza di un fossato largo m 12, che circondava l’intero perimetro del castello, oggi colmato.
Purtroppo oggi (2021) gli edifici sono in stato di totale abbandono e fatiscenti.
Vedasi una dimostrazione: https://www.youtube.com/watch?v=UR5Db1ooQk8
Vedi anche, con ampia documentazione fotografia:
https://www.lorenadurante.it/2021/03/15/il-castello-di-abbandonato-di-albano-vercellese/ e https://www.preboggion.it/CastelloIT_di_VC_Albano_Vercellese.htm
Bibliografia:
– Andrea Caligaris. La conservazione delle architetture di Mercurino Arborio Gattinara e della sua famiglia : ipotesi di progetto di restauro e di rifunzionalizzazione del convento dei canonici regolari lateranensi come caso studio. Rel. Emanuele Morezzi, Emanuele Romeo, Gabriele Ardizio. Politecnico di Torino, Corso di laurea magistrale in Architettura Per Il Restauro E Valorizzazione Del Patrimonio, 2015
Info: Comune. tel. 0161 73113
* Invio Segnalazione a Prefetto Vercelli, Sindaco del Comune di Albano Vercellese, al Presidente Regione Piemonte, alla Soprintendenza Archeologia, Belle Arti e Paesaggio per le Provincie di Biella, Novara, Verbano-Cusio-Ossola e Vercelli (11 giu 2021): UNIVOCA PS Castello Albano Vercellese
* Risposta Comune di Albano Vercellese (25 giu 2021): Risposta Comune Albano Verc.
* Risposta della Regione Piemonte (6 lug 2021): LetteraUNIVOCA_CastelloAlbanoVercellese
Il Castello medievale di Parpaglia con torrione (tutt’oggi visibile) è il frutto dell’incastellamento avvenuto un po’ dappertutto nel Piemonte nei secoli XII-XIV.
Nello stesso periodo è ipotizzabile che attorno al castello venisse edificato un piccolo ricetto che col passar dei secoli si trasformò in alcuni grandi cascinali.
Il Castello di Parpaglia è una delle rare preesistenze medievali del territorio composito e ricco del parco di Stupinigi. Strettamente connesso con la cascina Parpaglia, attualmente abitata e sede di aziende agricole e lavoratori contadini dei campi circostanti. L’epoca precisa di edificazione della fortificazione si perde nel tempo benchè sia probabile che la sua nascita corrisponda alla metà del XII secolo.
Il nobile Willelmus già presente nel 1199 e proprietario di beni in Candiolo, fu il primo Signore del luogo. Derivante dai Parpaglia del casato dei Signori di Revigliasco apparteneva al valoroso Ordine dei Cavalieri di San Giovanni in Gerusalemme, ovvero, gli ospitalieri. Candiolo comparì come Priorato della Commenda dell’Ordine dei Gerosolomitani nell’anno 1358 che successivamente, 1530, divenne l’attuale Ordine di Malta, sebbene fossero presenti molti beni allodiali.
Uno dei più illustri dei conti della Bastita di Mondovì fu Monsignor Vincenzo Parpaglia, ambasciatore del Duca Emanuele Filiberto di Savoia presso la Santa Sede a Roma attorno al 1572. Un secondo illustre personaggio fu Monsignor Giuseppe Parpaglia, Arcivescovo di Tarantasia, 1573 -1598, anno di decesso per peste a LES ALLUE – MERIBEL di Albertville (Savoia).
Dopo questa famiglia nobile si affacciano sulla storia di Parpaglia i conti Piossasco, che, verso la metà del secolo XV, riuscirono a creare un vasto feudo (seppur diviso fra i vari rami della nobile famiglia) che andava da None-Airasca fino a Volvera-Piossasco e più a sud fino a Virle-Castagnole.
In epoche più moderne e quindi nel secolo XV il territorio aveva ancora conservato una evidente impronta medioevale: alcuni grandi cascinali, Prato Fiorito, Pignere, Parpaglia, Ormanino (l’antichissimo insediamento romano Vicus Maninus), ecc., aree boschive a sud-ovest con marcate risorgive di acqua e vasti coltivi frutto del disboscamento a nord est.
A partire dalla metà del sec. XVI, la zona dei boschi di Stupinigi, dove era situato anche il feudo di Parpaglia, ebbe una alternativa di vendite con la dominazione dei francesi di Enrico II fino al 1573, quando il Duca Emanuele Filiberto di Savoja destina tutta quella vaste area a sud ovest di Torino tra Sangone e Chisola all’appena costituito Ordine Mauriziano, appena riconosciuto con la Bolla del Papa Gregorio XIV del 1572.
Nel secolo XVII il conte Gian Michele Piossasco None, 1638 – 1732 (96 anni ?), Fondatore del famoso Reggimento Savoia Cavalleria nel 1692, è il possessore con titolo signorile del Castello e cascine di Parpaglia di circa 528 giornate di terra.
Nella mappa del misuratore Carlo Fogliarini (sd ma anteriore al 1729) risulta molto ben in evidenza il castello di Parpaglia.
La proprietà passò più volte di mano, finchè il marchese Perrachini Bonaventura di Cigliano la vendette al Regio Patrimonio, nel 1760, che pochi anni prima, esattamente nel 1753, aveva acquisito anche il feudo di Vinovo.
Nel “Plan de chateau Bois et bien ruraux possedès èar le Roi a Stupinis avant 1796”, di autore ignoto dei primi anni del sec. XIX e nelle annotazioni a margine c’è scritto su Parpaglia: “Vieux chateau de Parpaille reservè par 4 tier (quartier) des Dragons de chasse” cioè nel castello vi era un presidio di guardia caccia.
Dopo un breve intervallo, causato da Napoleone Bonaparte, passò in mani private e vide tra i proprietari anche il signor Giuseppe Francesco Agnelli. Successivamente, tutta la proprietà detta Parpaglia, cioè cascine e castello, per volontà ed intercessione del Re, tornarono a far parte della Commenda Magistrale di Stupinigi dell’Ordine del Mauriziano.
Nell’inverno 1918-1919 fu luogo di internamento di un gruppo di prigionieri austriaci di nazionalità polacca, con la fine della guerra diventati “ex nemici”. Costoro erano in attesa di ritornare nella POLONIA che dalle ceneri della guerra diventò una unica libera e democratica nazione.
A tutt’oggi il Castello di Parpaglia, inserito all’interno del Parco di Stupinigi della Regione Piemonte, è disabitato ed abbandonato alle intemperie. Alcune parti edili, come porzioni del tetto e del “donjon”, risultano anche pericolanti.
L’idea di un workshop maturò nell’ambito della Pro Loco di Candiolo (nel cui territorio è inserito il Castello di Parpaglia), a fine 2014 (come evidenziato dalla sottostante locandina) con un socio libero professionista e collaboratore presso il Politecnico di Torino, con finalità agroturistiche di importante ricaduta sul territorio e con finanziamenti pubblici/privati. Tale progetto è stato illustrato durante un workshop e con la pubblicazione di un “Learning fron Heritage” al quale ha anche contribuito la Pro Loco di Candiolo (vedi allegato). Di tale iniziativa non c’è stato alcun seguito.
Autore: Gervasio Cambiano (con contributi del Comitato Antico Castello dei Parpaglia)
Allegato: Parpaglia Politecnico 2016
Note aggiuntive (24 marzo 2019):
– Di origine presumibilmente duecentesca, i proprietari del castello furono Cavalieri Gerosolimitani, dal 1530 noti come Ordine di Malta. I nobili di Parpaglia, ramo cadetto del casato Revigliasco, ebbero poi quale residenza in Candiolo il castello omonimo, situato a poca distanza dal centro abitato.
Trattasi di una delle rare preesistenze medievali del territorio composito e ricco del parco di Stupinigi.
La connessa cascina Parpaglia è attualmente abitata e sede di aziende agricole e lavoratori contadini dei campi circostanti, mentre il castello ha necessità urgente di essere messo in sicurezza e di essere recuperato e riportato a splendere. Gli interni sono opere d’arte.
– ll 15 aprile 2016 si tenne a Candiolo un incontro di presentazione dei progetti studiati dagli studenti di Architettura e Design del Politecnico di Torino per riportare alla luce e in vita quest’antico castello. Gli studenti delinearono 7 scenari possibili, valutando gli aspetti storici, di restauro, di valorizzazione economica e composizione architettonica del progetto (vedi volantino a latere). 
Da allora, nessuna iniziativa è stata concretamente presa, per cui il castello è a rischio crollo.
La proprietà è dell’Ente di gestione dei Parchi Reali, Ente strumentale della Regione Piemonte.
– Inviata segnalazione a Prefetto di Torino, a Soprintendenza, a Comune di Candiolo, a Regione Piemonte, a Politecnico di Torino, vedi allegato: UNIVOCA Castello di Parpaglia – Segnalazione-signed
– In data 30 dicembre 2019, pervenuta lettera di risposta da Regione Piemonte, Direzione Risorse Finanziarie e Patrimonio, evidenziante l’interessamento dell’Ente ed in particolare che il bene viene “inserito nella programmazione dei servizi, annualità 2020, il “Servizio di valutazione dell’idoneità statica e progettazione preliminare degli interventi di consolidamento strutturale dei Poderi in Stupinigi (TO), 1° fase”, volto ad individuare gli interventi strutturali da attuare sui beni del compendio, maggiormente ammalorati, tra cui il Castello in oggetto, ed il relativo costo, al fine di consentire all’Amministrazione la pianificazione degli stessi e delle risorse necessarie.”, vedi allegato: Castello Parpaglia da Regione Piemonte
Inviata a Regione richiesta sullo stato dell’arte in data 14/10/2021: UNIVOCA Castello Parpaglia 14 ott 2021
Storia del Castello su Torino Storia n. 80 di maggio 2023: TorinoStoria Castello di Parpaglia
Regione Piemonte: determina intervento in data 10 feb 2022: Parpaglia Determina Regione 10 feb 2022 per rifacimento della copertura con opere di rinforzo e ripristino presso Castello Parpaglia a Candiolo (TO)
CANDIOLO. Partiti i lavori di restauro del castello Parpaglia.
Al fine di non compromettere ulteriormente lo stato attuale di solai e murature si prevede per il momento la sostituzione del tetto, inserendo lamiere al posto dei coppi, in grado di evitare le infiltrazioni dovute alla pioggia.
In questi giorni la Regione Piemonte ha dato il via ai lavori di messa in sicurezza/conservazione del Castello di Parpaglia, immobile di proprietà regionale insistente nella porzione di parco di Stupinigi presente sul territorio di Candiolo.
L’immobile si presenta oggi in pessime condizioni di conservazione.
Al fine di non compromettere ulteriormente lo stato attuale di solai e murature si prevede per il momento la sostituzione del tetto, inserendo lamiere al posto dei coppi, in grado di evitare le infiltrazioni dovute alla pioggia. Saranno anche eseguiti interventi che miglioreranno le condizioni di staticità. L’intervento intende ridurre quanto possibile il degrado, anche interno, per prevenire crolli e prolungare la conservazione dell’immobile in vista di un intervento radicale di consolidamento e restauro esteso a tutto il castello. La copertura economica dell’intervento è totalmente a carico di regione Piemonte.
“Credo che questo rappresenti un primo concreto passo verso un recupero – spiega il sindaco, Stefano Boccardo -, ed è anche il frutto di un lavoro capillare e costante (portato avanti ormai da 7 anni) di sensibilizzazione e promozione di un bene che rappresenta una delle tante peculiarità e memoria storica di Candiolo e di Stupinigi stessa”.
Fonte: www.torinosud.it, 27 apr 2022
Vedi anche: Il_sistema_territoriale_della_Commenda_Magistrale di Stupinigi e la cascina castello di Parpaglia di Chiara Devoti
Vedi anche: NICHELINO (To). Il 2024 di Stupinigi comincia in salita: cantieri eterni, promesse e tetti crollati.
Il Castelvecchio di Stupinigi sorge alle porte meridionali di Torino, a lato della palazzina di caccia juvarriana di Stupinigi. Castelvecchio è un’importante architettura fortificata di impianto medioevale, a cui si è aggiunto, in epoca più recente, il corpo di fabbrica a quattro piani che sovrasta in altezza persino l’originaria torre a pianta quadrata, posta a difesa dell’ingresso.
A parte questo blocco, il castello si presenta come un vasto fabbricato a corte su due piani, mostrando la derivazione dai castelli agricoli tre-quattrocenteschi della zona. Era l’antica residenza dei Marchesi Pallavicino, che lo acquistarono dai Savoia-Acaia nel 1439.
Nel 1563 la proprietà fu ceduta a Emanuele Filiberto, quando questi trasferì la capitale del Ducato di Savoia da Chambèry a Torino. In seguito Emanuele Filiberto donò Stupinigi all’Ordine dei santi Maurizio e Lazzaro, oggi Fondazione Ordine Mauriziano. A differenza del Castello di Rivoli, Juvarra non tentò di inglobare la preesistenza, anzi nel 1735 ne furono demolite delle parti e fu adibito a magazzini e ad abitazioni per affittuari fino al 1776 quando fu rammodernato e restaurato.
Attualmente Castelvecchio è un maniero fantasma, lasciato alle incurie del tempo, in stato di totale degrado e sfacelo.
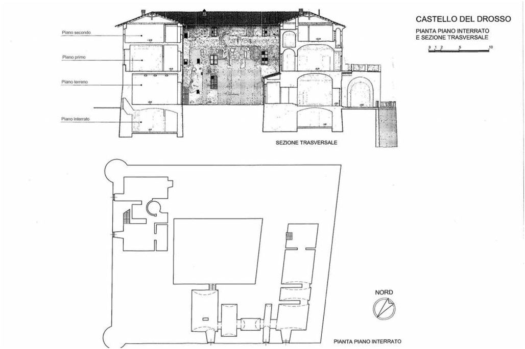
Il Castelvecchio è preesistente quindi all’intervento juvarriano ed è anch’esso di proprietà della Fondazione Ordine Mauriziano. Di impianto quadrilatero aggregato intorno al cortile, con torri perimetrali, costituiva insieme al castello del Drosso, posto lungo il torrente Sangone, e a quello di Vinovo, il sistema territoriale di controllo degli accessi a Torino da sud.
Vedi allegato, da “TORINOstoria”, Anno 4 n. 37 marzo 2019: Castelvecchio, a cura di Paolo Patrito.
Segnalazione: 25/10/2019 UNIVOCA Castelvecchio di Stupinigi Segnalazione
Vedi risposta della Soprintendenza: Castelvecchio Lettera Soprintendenza
Vedi articolo su www.ilcaffetorinese.it del 24 marzo 2021:
“Se le istituzioni lasciano al degrado i castelli del Piemonte, i piemontesi li comprino.”
Il caso del Castelvecchio di Stupinigi e un’idea di successo che viene dalla Francia: crowdfunding per restaurare castelli abbandonati, con una quota minima di partecipazione per diventare co-proprietari e salvarli dal degrado.
I visitatori che si recano a Stupinigi spesso e volentieri neanche se ne accorgono. Seminascosto dalla vegetazione, è visibile soltanto a chi, giunto al piazzale antistante la Palazzina di Caccia sabauda, prosegue in auto sulla sinistra lungo viale Torino, per poi svoltare sempre a sinistra in viale Vinovo.
Ed è allora che lo si vede: un basso edificio medievale costruito in mattoni rossi e sormontato da tre torri. È detto “Castelvecchio”, e benché dalla strada non se ne colgano le effettive dimensioni, è un castello più grande di quanto ci si possa aspettare. Pesantemente rimaneggiato nel Settecento e a pianta vagamente quadrata, presenta al centro un ampio cortile.
Il primo nucleo del castello è già documentato nel 1288. Nel corso del medioevo passò in diverse mani, finché Emanuele Filiberto nel 1573 lo cedette all’Ordine dei Santi Maurizio e Lazzaro da lui appena fondato. Nel Settecento con la costruzione della Palazzina di Caccia il paesaggio di Stupinigi cambiò radicalmente: alcune case e la chiesa del borgo furono abbattute e il castello, decisamente ridimensionato, assunse il suffisso di “vecchio”. Per tutto l’Ottocento ospitò decine di affittuari, personale, militari e guardiacaccia di servizio a Stupinigi. Mantenne però gli elementi del castello quattrocentesco: le torri quadrate, i cortili interni, gli spettacolari soffitti a botte e le tracce dell’impianto medievale.
Oggi il castello, dal 2005 in stato di completo abbandono, rientra tra le proprietà inalienabili della Fondazione Ordine Mauriziano (presieduta dall’ex segretario generale della CRT Angelo Miglietta), a cui secondo statuto spetta la salvaguardia del “patrimonio storico, culturale, religioso e paesaggistico di pertinenza sabauda nei secoli raccolto dall’ordine”, e che annovera tra le proprietà gioielli come la Palazzina di Caccia di Stupinigi, Sant’Antonio di Ranverso, l’Abbazia di Staffarda, la Basilica Mauriziana, le Chiese di Cagliari e Asti e terreni vari quasi impossibili da vendere per il vincolo d’uso che si portano addosso.
Commissariata una prima volta nel 2002, la Fondazione non ha mostrato negli ultimi anni di saper risolvere gli ormai endemici problemi finanziari che si trascina dietro: ogni anno si spendono circa 3.800.000 euro per la sola gestione ordinaria, mentre in cassa, fra biglietti e affitti delle sale, ne entrano più o meno 1.200.000, cinque sesti dei quali soltanto da Stupinigi.
Al punto che lo scorso anno, con la facciata della Palazzina di Caccia – e in particolare il cornicione juvarriano – che ha iniziato a perdere pezzi, per lavori di manutenzione ordinaria si è dovuto fare affidamento al bando “Cantieri diffusi” della CRT. Il cui contributo complessivo dal 1988 ad oggi è stato pari a circa 20 milioni di euro per opere che vanno dal consolidamento statico dell’edificio all’adeguamento alle norme di sicurezza, fino al restauro di affreschi, statue e degli appartamenti del Re e della Regina.
Un recupero del Castelvecchio da parte dell’Ordine Mauriziano è dunque tanto impensabile quando non auspicabile, a meno di non voler vedere trascinato un altro ente piemontese in una querelle finanziaria sul modello delle recenti vicende del Teatro Regio.
La soluzione potrebbe arrivare, allora, dalla Francia, dove tra 2017 e 2018 due castelli (quello in rovina di Ebaupinay, nel Poitou-Charentes, non lontano da Nantes, e il Chateau de la Mothe-Chandeniers, diroccato e in vendita) sono stati acquistati collettivamente dalla popolazione.
Come riportato all’epoca da Repubblica, “La fortezza in questione [Ebaupinay, ndr] è infatti in rovina, ed è stato lanciato un crowdfunding per restaurarla. La quota minima di partecipazione a questa colletta online è di 50 euro. In cambio si avrà l’accesso libero a vita, oltre all’invito a partecipare alle decisioni sulla sua ricostruzione. L’idea di salvare Ebaupinay nasce da un crowdfundind per un altro castello diroccato, il Chateau de la Mothe-Chandeniers, che un anno fa fu vantaggiosamente messo al riparo dai danni del tempo e dalle mire di alcuni immobiliaristi senza scrupoli che volevano abbatterlo per costruire al suo posto un hotel di lusso. Oggi, questo castello conta circa 18000 proprietari. […] Gli organizzatori hanno già raccolto quasi 500mila euro, versati da circa 8000 persone. Ma per salvarlo, e cioè per mettere in sicurezza le parti più danneggiate, ne servono ancora almeno 200mila. Ai donatori saranno offerte le azioni dell’azienda creata per restaurare il castello, rendendoli così ufficialmente proprietari”.
Castelvecchio è come detto proprietà inalienabile della Fondazione Ordine Mauriziano, ma questo non esclude che, in presenza di un serio progetto di riqualificazione che rispetti i vincoli architettonico-culturali a cui è sottoposto, si possa procedere con una revisione statutaria di concerto con il ministero. E, anche qualora ciò non accadesse, per tentare il recupero di altri manieri ed edifici storici piemontesi non privati si potrebbe tentare la stessa strada. I siti, a ben vedere, non mancano.
Il castello di Parpaglia, anch’esso a ridosso del centro abitato di Stupinigi – nello specifico, nel parco della Palazzina di caccia –, è una delle rare preesistenze medievali del territorio a sud di Torino. Più piccolo del Castelvecchio, ebbe tra gli altri proprietari il celebre Ordine dei Cavalieri di San Giovanni in Gerusalemme (ovvero, gli ospitalieri) e lo stesso Ordine Mauriziano, mentre oggi proprietà della Regione Piemonte.
Più a Est, nei pressi di Santhià, a quello che un tempo era l’incrocio tra la Via Francigena e la Via Svizzera, stretto tra due torri e completamente circondato da merli a coda di rondine sorretti da lunghi beccatelli adornati da una fascia decorativa, sorge il castello di Vettigné. Un castello con vista, che domina la campagna vercellese e riposa all’ombra del maestoso massiccio del Monte Rosa, raggiungibile in un’ora e mezza di auto.
Più a Nord, a pochi passi dal confine italo-svizzero, su tre isolotti rocciosi situati nel lago Maggiore nel comune di Cannobio si levano i castelli di Cannero, ruderi di antiche fortificazioni, oggi uno degli scorci più pittoreschi del lago. Fortunatamente, per sopperire alle inefficienze e alle storture del settore pubblico, in questo caso sono intervenuti direttamente gli ex proprietari: i Borromeo. Che nel 2019 hanno avviato lavori, della durata triennale, che renderanno fruibili ai turisti i castelli per farne un museo interattivo sul loro passato.
Destino diverso per altri pregevoli esempi di incastellamento in Piemonte, oggi abbandonati: si va dalla Rocca di Carpenetta, non distante da Racconigi, in origine un ricetto appartenuto all’Abbazia di Staffarda, al castello di Castelnuovo Bormida, frutto di una sovrapposizione stilistica causata da continui rimaneggiamenti, e teatro di numerosi scontri nel corso delle guerre napoleoniche in Italia; dal medievale castello della Rotta, nel comune di Moncalieri, all’imponente castello di Frinco, che adagiato tra le dolci colline astigiane domina l’omonimo borgo.
Autore: Michele Barbero
Fonte: www.ilcaffetorinese.it, 24 marzo 2021
Vedi articolo su “La Stampa” del 12 dic 2021: TORINO. Stupinigi rinasce con 25 milioni del Pnrr.
La Regione vuole far diventare la Palazzina di Caccia una nuova Reggia di Venaria
«Vogliamo che Stupinigi diventi una nuova Venaria, in grado di attrarre turisti da tutto il mondo. Per questo sarà uno dei progetti culturali più importanti finanziati con i fondi del Pnrr».
Il presidente della Regione, Alberto Cirio, annuncia di aver stabilito un investimento da 25 milioni per ristrutturare e dare una nuova identità alla Palazzina di Caccia. Un progetto partito già mesi fa – promosso da Compagnia di San Paolo, Fondazione Crt e Fondazione Ordine Mauriziano – ma che ora trova le risorse necessarie per essere realizzato in tempi rapidi.
Venerdì, durante un incontro tra il governatore e i presidenti delle Fondazioni, è stata definita la costituzione dell’unità di missione «Stupinigi 2030» che avrà il compito di attuare il piano di riqualificazione architettonica e culturale che avrà come fulcro il recupero delle testimonianze sulla vocazione rurale della residenza sabauda, costruita per la caccia e le feste.
«L’intervento – racconta Cirio – sarà proposto al ministero della Cultura con l’obiettivo di non frammentare le energie di queste risorse, concentrandole in un grande intervento dalle ricadute storiche per l’intero territorio piemontese e italiano».
Dei 25 milioni previsti come investimento, 20 arriveranno proprio dal Pnrr e 5 dalla programmazione del Fondo europeo di sviluppo regionale.
«Stupinigi 2030 mira alla creazione di una seconda Venaria capace di attrarre milioni di visitatori e di un sistema in grado non solo di competere, ma anche di superare per qualità e attrattività i Castelli della Loira – sottolinea ancora Cirio -. Mentre per la Reggia di Venaria la vocazione è principalmente culturale e artistica, per la Palazzina di Caccia di Stupinigi immaginiamo una missione storica e architettonica, ma allo stesso tempo rurale ed esperienziale».
Per questo il progetto di recupero non coinvolgerà solo la Residenza reale, ma anche le sue cascine e le antiche botteghe.
«Daremo nuovamente vita ad un borgo, dove il visitatore potrà immergersi in una esperienza unica», evidenzia ancora il governatore.
Per non creare nuove strutture di gestione, l’ipotesi è di insediare l’unità di missione «Stupinigi 2030» all’interno del Centro Conservazione e Restauro «La Venaria Reale», punto di riferimento per il recupero di opere e beni artistici. Nata nel 2005 nell’ambito dei grandi interventi di riqualificazione della Reggia, la Fondazione vede già tra i suoi fondatori il ministero per i Beni Culturali, Regione Piemonte, Città Metropolitana di Torino, Comune di Torino, Comune di Venaria Reale, Fondazione Crt, Compagnia di San Paolo e Università degli Studi.
Autore: Claudia Luise – Fonte: www.lastampa.it, 12 dic 2021
Vedi articolo su La Stampa del 30 gen 2022
NICHELINO, fraz. Stupinigi. Negozi, ristoranti e un polo biologico: così rinasce la nuova Stupinigi.
Recupero dell’area della palazzina di caccia, creazione di una vera e propria cittadella adiacente con negozi, attività artigianali e commerciali. Con un focus principale sulla zona ex granai e il fabbricato ex Mandria, un tempo conosciuto come trattoria dei cacciatori. E poi un polo di interesse turistico-culturale, capace di stimolare anche il ripopolamento. Ecco le linee guida del recupero del borgo di Stupinigi, diventato ieri ufficialmente uno dei progetti bandiera che la Regione candiderà sui fondi del Pnrr. La delibera che conferma la volontà di investire su questo grande piano di riqualificazione è stata approvata dall’amministrazione Cirio: dopo il lavoro sulla Reggia di Venaria, questo sarà il più articolato per lo sviluppo del sistema culturale e turistico piemontese. Ora l’atto scritto c’è.
Fulcro di tutto è la zona di viale Torino, la strada che collega la palazzina con l’ingresso delle tangenziali. E quindi la riqualificazione dei poderi e strutture che corrono lungo la striscia d’asfalto. I progetti sono diversi e le proposte non mancano. Ad esempio: nella zona ex granai, il fabbricato è diviso in tre piani e ognuno potrà ospitare servizi differenti. Nel recente passato si era parlato di un ostello nel piano più alto, mentre il salone del primo livello potrebbe diventare un centro polifunzionale. Anche la zona delle cantine avrebbe aspirazioni ricettive. Vocazione residenziale per quella che un tempo era la trattoria dei cacciatori, con la ristrutturazione degli appartamenti interni. E poi c’è la partita degli insediamenti commerciali, legati anche alla valorizzazione dell’agricoltura. In ballo, ad esempio, un nuovo polo del biologico accanto all’attuale macelleria, mentre potrebbero aumentare le aree destinate alla cura degli animali. Come oggi, ad esempio, è la zona dove sorge la fattoria didattica.
Il piano si incastra con gli altri progetti di sviluppo del parco e le operazioni in corso per il recupero del Castelvecchio, dietro la palazzina di caccia. In sostanza, l’area diventerà un polo di attrazione a 360 gradi dove si potranno visitare i gioielli della palazzina, respirare la storia agricola della zona e comprare prodotti «made in Stupinigi», rendendola attrattiva un po’ come era stato fatto con la Reggia di Venaria.
Ulteriore conseguenza auspicata è il ripopolamento della zona. L’obiettivo è completare la trasformazione per il 2030, legandolo alla valorizzazione dei borghi. L’investimento è di 25 milioni di euro, 20 con il Pnrr e altri 5 nell’ambito della programmazione del fondo europeo di sviluppo regionale, con l’obiettivo di non frammentare le energie di queste risorse, concentrandole in un grande intervento.
«Il Piemonte – dicono il presidente della Regione Alberto Cirio e l’assessore alla cultura Vittoria Poggio – è pronto a raccogliere la sfida, il progetto è ambizioso ma abbiamo le capacità e le forze per farlo crescere e per portarlo a compimento.
Stupinigi non ha nulla da invidiare ai Castelli della Loira: diventerà una seconda Reggia di Venaria».
Raggianti gli amministratori nichelinesi: «Siamo orgogliosi di questa candidatura – dicono Giampiero Tolardo, sindaco di Nichelino e Diego Sarno consigliere regionale Pd -. In questi anni ci siamo impegnati, anche attraverso il protocollo dei sindaci, per valorizzare l’area dal punto di vista storico-artistico e come polo culturale e ambientale con eventi di interesse internazionale come Stupinigi Sonic Park».
Autori: Cristina Insalaco, Massimiliano Rambaldi. Fonte: www.lastampa.it, 30 gen 2022
Dal sito internet del Consiglio Regionale – giugno 2023: Sopralluogo a Stupinigi il 29 Giugno 2023
Interventi di restauro per l’appartamento di ponente della Palazzina di Caccia di Stupinigi, sia negli ambienti aulici, sia nelle gallerie di collegamento, ma anche per l’appartamento Carlo felice; adeguamento degli spazi aperti e recupero del Parco interno; completamento e rifunzionalizzazione della grande Scuderia di ponente; riutilizzo dei poderi dell’antico complesso agricolo denominato Concentrico in attività commerciali legate alla vendita di prodotti locali.
Sono solo alcune delle azioni previste dal masterplan “Azioni per la valorizzazione e lo sviluppo del Distretto dei Comuni del Protocollo”, condiviso dalla Regione Piemonte e dai comuni di Nichelino, Orbassano, Candiolo, Beinasco, None e Vinovo per la riqualificazione del distretto reale di Stupinigi, dove, questa mattina, i componenti della Commissione cultura hanno effettuato un sopralluogo proprio allo scopo di verificare lo stato attuale degli spazi e incontrare i sindaci dei Comuni interessati.
“Obiettivo di questa serie di misure – ha dichiarato il presidente dell’Ente di gestione delle aree protette dei Parchi Reali, Luigi Chiappero – è quello di realizzare continuità tra tutti gli ambienti a servizio di Stupinigi. Il progetto per il restauro del Parco Storico della Palazzina di Caccia, il ripristino dei cancelli e delle mura perimetrali è gestito dalla Fondazione Ordine Mauriziano: per portarlo a termine ha ottenuto i fondi del Pnrr, circa 2 milioni di euro, attraverso il bando del ministero della Cultura dedicato ai parchi e ai giardini storici, finanziato dall’Unione Europea attraverso i fondi NextGenerationEU. Altri 5 milioni di euro, arriveranno poi da fondi ministeriali per il completamento del percorso museale, per il restauro dell’appartamento Principe di Carignano e per migliorare l’accessibilità agli appartamenti di ponente”.
Il completamento dei restauri sarà a cura della Consulta per la Valorizzazione dei Beni Artistici e Culturali che si è resa disponibile ad avviare la progettazione degli interventi e a promuovere una ricerca di fondi per un piano biennale di investimenti.
Al sopralluogo hanno partecipato il presidente della commissione cultura Davide Nicco (Fdi) e i consiglieri Diego Sarno (Pd), Monica Canalis (Pd), Giorgio Bertola (Europa verde), Francesca Frediani (M4O-UP), Sara Zambaia (Lega) e Sarah Disabato (M5S).
Ndr: Nessun riferimento al Castelvecchio che sta crollando.
Vedi nostro sollecito del 10 luglio 2023 a Segnalazione del 25/10/2019 e primo Sollecito del 14 ottobre 2021: UNIVOCA Castelvecchio di Stupinigi
Vedi risposta della Fondazione Ordine Mauriziano in data 14 luglio 2023: Risposta Fondazione Ordine Mauriziano
Vedi articolo su Torino Corriere del 4 gennaio 2024, vai a: >>>>>>>>>> . La presidente della Fondazione Ordine Mauriziano: «Destinati 3 milioni a Castelvecchio».
Galleria immagini:
Vedi anche: LE DODICI CASCINE DI STUPINIGI, di Paolo Patrito. Lungo il viale che porta alla Palazzina si affacciano le monumentali costruzioni, dodici poderi del Settecento, attorno ai quali ruotava l’economia agricola e venatoria della tenuta sabauda.
Fonte: Torino Storia n. 68 Stupinigi
Vedi anche: C’E’ UN PIANO PER SALVARE IL CASTELVECCHIO, di Paolo Patrito. Sono finalmente finanziati i lavori contro il degrado dell’antichissimo maniero di Stupinigi,, a fianco della Palazzina di Caccia.
Fonte: TorinoStoria 90 Castelvecchio di Stupinigi
L’area archeologica non si riconosce se non per una recinzione, peraltro divelta in più punti, e due pannelli descrittivi che sono ormai diventati completamente bianchi e quindi non descrivono più nulla.
L’Antiquarium: non è possibile chiamarlo ancora così, anche se ci sono titoli ed indicazioni in tal senso; è indicato in uno stabile, una ex-scuola, non solo abbandonato ma in fase di crollo. Non si osa pensare che il materiale sia ancora dentro.
Questa situazione persiste ormai da circa 10 anni: tuttavia a Villa del Foro e dintorni ci sono molte segnalazioni che indicano sia l’area archeologica che l’Antiquarium; avessero almeno il pudore di toglierli.
Il paese di Villa del Foro infine sta inesorabilmente morendo e questo potrebbe essere evitato soltanto ravvivandone l’esistenza proprio con un interesse per il passato, che non si conosce per decisione di chi, viene del tutto cancellato.
Sopralluogo effettuato in data 4 settembre 2020.
Autore: Feliciano Della Mora
Si allegano testimonianze e denuncie precedenti, rimaste senza risposte:
La zona archeologica abbandonata di Villa del Foro.
Riceviamo e pubblichiamo alcune immagini della zona archeologica di VIlla del Foro (Alessandria) che come si può vedere è completamente abbandonata; del resto perché stupirsi visto che c’è chi ha sempre sostenuto che con la cultura non si mangia…
Se trattiamo in questo modo il nostro già scarso patrimonio artistico anziché valorizzarlo e pubblicizzarlo poi non pretendiamo che arrivino i turisti…
Ovviamente il sito é chiuso e presumibilmente abbandonato visto lo stato della vegetazione.
Analogo discorso per il museo in paese.
Fonte: alessandria.today, 16 ago 2020
Il degrado dell’Antiquarium di Villa del Foro, j’accuse dello street artist: “È una vergogna”
Guido Bisagni, in arte 108, alessandrino, è anche uno degli street artist (odia però questo termine) più quotati d’Italia: torna sempre dove è nato, ultimamente con sofferenza, perché vede una città morta. Lui è uno di quegli artisti attirati dalle fabbriche abbandonate, che sfrutta come tele per le sue creazioni. Ma, quando lo stato di degrado tocca i musei, grida allo scandalo, soprattutto se nella sua città. Egli espone con successo in tutto il mondo e viene contattato per riempire muri e per progetti di livello.
Ora denuncia lo stato di abbandono dell’Antiquarium di Villa del Foro, il suo museo preferito.
Cosa pensa di quello che si trova oggi a Villa del Foro?
«Forse la cosa più schifosa e vergognosa della città. Ogni volta che passo di lì, ho il disgusto. L’area archeologica con i resti della città romana abbandonati e usati come discarica, i reperti dei siti e delle necropoli preromane completamente dimenticati, i reperti a Torino. Per fortuna, a questo punto».
Ci andava spesso?
«Era uno dei miei musei preferiti, purtroppo già quando era aperto gran parte dei reperti erano nei magazzini a Torino. Adesso ad Alessandria di alessandrino non c’è più niente, tutto al museo di antichità. Mentre ad Alessandria, a Palazzo Cuttica, ci sono i reperti preromani di Tortona. Non si capisce proprio».
Perché era importante l’Antiquarium?
«Credo che il minimo indispensabile sia valorizzare la propria storia, anche solo per senso di responsabilità nei confronti della nostra terra. Nessuno sa nemmeno che sotto Alessandria – al Cristo, Villa del Foro, Cascina Chiappona, Casal Cermelli – ci fossero alcune delle sepolture più antiche del nord ovest. A Villa del Foro hanno trovato reperti che hanno un valore davvero inestimabile».
Intende nell’area archeologica, ora dimenticata?
«Esatto: sembra una discarica. Si vede questo recinto con dentro niente. Anche i cartelli informativi ormai sono bianchi, mangiati dal sole. Tutto è in uno stato che va oltre l’immaginazione considerando che lì c’era una città romana e preromana. Non è solo tenuta malissimo: è abbandonata nel modo peggiore».
Quella è parte della storia antica di Alessandria?
«Mi affascina molto pensare che lì prima dei romani vivessero i veri alessandrini, i nostri avi. Hanno trovato molte sepolture dell’età del ferro e del bronzo, anche una parte di acquedotto. Erano le uniche tracce e non erano nemmeno da poco. Siamo noi i primi a non interessarci della storia, invece è importante conoscere le proprie origini».
Decadimento culturale?
«Certo. Una città da quasi 100 mila abitanti che non si riesce a mantenere tre musei aperti è sintomo che a nessuno frega nulla. Non è solo colpa delle varie amministrazioni. Ad Alessandria è considerato culturale un mercatino. Sono preoccupato per i giovani: vent’anni fa potevo ascoltare musica di importanti band americane, vedere mostre, frequentare gallerie nella mia città. Oggi gli unici appuntamenti culturali veri, Inchiostro e AleComics, che è culturale a suo modo, non ricevono aiuti economici e fanno fatica a sopravvivere».
Ha una soluzione?
«Dare in mano gli spazi agli artisti, che possono aprire studi. Serve qualcuno che abbia voglia di fare».
Autore: Valentina Frezzato
Fonte: www.lastampa.it, 7 ago 2019
Villa del Foro, il museo che non c’è (ma restano i cartelli).
Storie di ordinario decadimento nell’era della crisi e del dissesto. La vicenda del museo e area archeologica di Villa del Foro (Forum Fulvii), e del sobborgo, è davvero esemplare. Se ne è parlato nel corso di una commissione cultura, convocata dal presidente Renzo Penna per fare il punto della situazione e per avanzare qualche ipotesi di “recupero”.
La vicenda la sintetizzano gli assessori Maria Teresa Gotta e Vittoria Oneto: la scuola del sobborgo chiude circa 30 anni fa per la diminuzione della popolazione scolastica (tra il 2011 e il 2014 sono nati a Villa del Foro 14 bambini). Nell’edificio trovano casa la Soms, l’ambulatorio medico, il seggio elettorale.
Nel 2004 apre il Museo che ospita una serie di oggetti, alcuni anche di pregio, dell’epoca etrusca e nasce, qualche anno dopo, il progetto “Dagli Etruschi a San Baudolino” proposto dalla giunta Fabbio che ottiene anche un finanziamento di 62 mila euro, pare mai utilizzati. Contemporaneamente all’apertura del Museo il comune acquisisce un’area da un privato dove la Sovrintendenza ai beni archeologici avvia una serie di scavi che portano alla luce importanti reperti. L’area viene delimitata e segnalata con cartelli. In realtà il museo non decollerà mai, anche per mancanza di promozione e di strategie. Questo è quanto comunica la Sovrintendenza al comune di Alessandria in una lettera datata dicembre 2010 e, pertanto, viene deciso di chiudere e ricoprire tutto.
Una parte dei reperti viene ospitata nell’ex ospedale militare, un’altra nei locali della scuola Straneo. I reperti più piccoli vengono dirottati a Torino e sono, attualmente, oggetto di studio. Nel frattempo il nucleo archeologico dei Carabinieri effettua alcuni sopralluoghi dove sono conservati (o meglio accatastati) i reperti e riscontra irregolarità per l’inadeguatezza degli spazi di conservazione.
Intanto anche lo stabile delle ex scuole del sobborgo cadono nell’oblio: chiude l’ambulatorio e il seggio elettorale, spostato negli spogliatoi del campo sportivo, e le poste. Resta la Soms, ormai ultimo punto di riferimento per il quartiere.
Oggi la Sovrintendenza farà un nuovo sopralluogo per verificare come è lo stato di conservazione dei reperti rimasti ad Alessandria. “Abbiamo pensato a luoghi alternativi, ma non ce ne sono di adeguati – spiega l’assessore Oneto – L’alternativa potrebbe essere quella di realizzare un deposito vero e proprio nell’ex ospedale militare, nella chiesa di San Francesco, ma le risorse non ci sono. C’era un progetto di fattibilità, un bel progetto, però irrealizzabile”. Il Comune, oggi, davanti alla Sovrintendente tenterà la carta del “tamponamento provvisorio”, ossia almeno lo spostamento del quadro elettrico, per rendere indipendente l’accesso all’area di deposito dal resto del complesso.
Impensabile, a maggior ragione, puntare ad un nuovo museo. “Il nostro obiettivo – prosegue Oneto – è quello di realizzare una estemporanea, nel 2016, ed una pubblicazione, per rendere fruibile alla città un patrimonio comunque importante”.
Andrea Villa, presidente della Soms di Villa del Foro, tende la mano e lancia qualche idea. Intanto quella di mettere in sicurezza le ex scuole: “era stato rifatto recentemente il tetto, ma ci sono infiltrazioni. Occorrerebbe almeno rendere sicuro il cortile, affinchè non ci siano rischi per chi vi entra. Da parte nostra siamo pronti a mettere a disposizione i nostri locali per far tornare l’ambulatorio medico, visto che la popolazione è prevalentemente anziana e non ci sono neppure più i collegamenti pubblici, salvo un servizio concordato con Arfea, e il seggio elettorale”.
Villa propone, poi, di realizzare un percorso verde, pedonabile, nell’area degli scavi, e di realizzare almeno una mostra fotografica che testimoni i lavori fatti “per non perdere almeno la memoria di quanto realizzato”.
“Intanto garantiamo l’attenzione sulla questione”, risponde Oneto. A costo zero. E a togliere i cartelli che ancora indicano il Museo che non c’è.
“Piange il cuore che si spenderanno 1milione e 700 mila euro per una pista ciclabile, quando si potrebbe invece recuperare un patrimonio storico importante”, commentano a lato i consiglieri Cinque stelle Andrea Cammalleri e Angelo Malerba.
Autore: Irene Navaro – irene.navaro@alessandrianews.it
Fonte: alessandrianews.ilpiccolo.net, 24 ott 2014
Info:
VILLA DEL FORO
– AREA ARCHEOLOGICA – Loc. San Damiano – Chiesetta di San Damiano (eremo di San Baudolino)
– Antiquarium – via Oviglio 10 – Villa del Foro (Al)
SEGNALAZIONE: UNIVOCA PS Villa del Foro
Sollecito: UNIVOCA PS Forum Fulvii 31 luglio 2023
Relazione Comune Alessandria: RELAZIONE_MUSEO_E_AREA_ARCHEOLOGICA_VILLA_DEL_FORO da Settore Urbanistica a Settore Opere Pubbliche del Comune il 23/08/2023
Informativa del Settore Urbanistica al Settore Opere Pubbliche del Comune al fine della messa in sicurezza, in data 29/08/2023: Trasmissione_Relazione_Museo_e_Area_arche.PP
Vedi articolo Soprintendenza: Villa_del_Foro_Alessandria_Il_materiale-1 in Quaderni della Soprintendenza Archeologica del Piemonte – Torino 2015 – 30
Schede inserite in attesa di segnalazione agli Enti di competenza.
Situato in provincia di Alessandria, il castello di Cereseto domina l’omonimo paese con una struttura così grande da essere visibile anche da molto distante.
Il suo aspetto così particolare rende inconfondibile il profilo della collina sulla quale sorge e, quando ci si avvicina al paese dal fondo valle e lo si vede improvvisamente spuntare, quello che si materializza davanti a sé è un castello che pare uscire direttamente da una fiaba.
Dall’esterno il castello colpisce sia per le sue dimensioni, sia per la bellezza delle decorazioni che lo ricoprono interamente.
Si tratta di uno dei castelli del Monferrato con le mura esterne meglio conservate, ma questo non dovrebbe stupire: a discapito del suo aspetto antico, medievale addirittura, il castello di Cereseto così come lo possiamo ammirare oggi è stato eretto nei primi anni del Novecento, su una struttura preesistente più antica.
Più precisamente, il castello è stato ricostruito dalle fondamenta intorno al 1912, con intensi lavori che si sono protratti per circa 10 anni.
La maestosa opera è la realizzazione di un desiderio dell’industriale e mecenate Riccardo Gualino, che ha scelto di erigere la struttura dove precedentemente si trovava l’originale castello di origine medievale, già devastato intorno al 1600 e successivamente restaurato dai conti De-Maistre Lovera di Maria.
L’imprenditore curò moltissimo anche gli interni, costruendo una collezione di mobili di pregio provenienti da tutta Italia e dall’estero, indispensabili per creare una sontuosa dimora.
Purtroppo, oggi gli interni del castello non sono visitabili, ma sono molte le persone che si recano nel borgo per vedere l’imponente castello di Cereseto dall’esterno e immortalarne la bellezza nelle loro fotografie.
Schede inerenti situazioni in attesa di approfondimento prima di procedere alla segnalazione agli Enti di competenza.
Appena usciti da Chieri in direzione di Torino, sulla destra, subito dopo il distributore dell’Agip, in località chiamata Balermo, si nota una cappella molto malridotta, quasi completamente ricoperta di teli di plastica che hanno la funzione di proteggerla dalle infiltrazioni di acqua che ne segnerebbero la fine.
Non si sa quando sia stata fondata ma, sia pure ricostruita e rimaneggiata più volte, esiste almeno da sette secoli e mezzo: la prima testimonianza, infatti, risale al 1266.
Fu eretta, insieme ad un piccolo ospizio, dai Betlemitani, un ordine religioso che si dedicava all’assistenza dei pellegrini. All’estinzione di quell’Ordine, venne retta da un cappellano nominato dal vescovo. Nel 1457 nei suoi pressi si insediarono i frati Minori Osservanti, che non molti anni dopo (1506) si trasferirono prima in zona Vallero, poi a San Giorgio e infine nel convento di Sant’Antonio, già dei Gesuiti.
A partire dal Cinquecento il patronato sulla cappella fu acquisito dai De Bernardi, seguiti dai Vasco e dai Robbio. I cappellani erano quasi sempre esponenti delle loro famiglie, che in questo modo si garantivano il godimento del pingue beneficio.
In un documento del 1700 la cappella viene descritta con il portico davanti. Attigua ad essa, dalla parte verso mezzanotte, “una piccola casetta per l’habitatione dell’Eremita, qual compone due piccole stanse una à tera et l’altra sopra, fatta bona parte di mattoni crudi senza sternito, minaccianti rovina”.
La descrizione non corrisponde alla realtà odierna. Infatti nel secolo XVIII la cappella venne ricostruita dal canonico Carlo Arduino.
Nel 1865, per effetto delle leggi Siccardi, che avevano soppresso molti enti religiosi, la cappella venne incamerata dallo Stato insieme ai suoi beni. Messa all’asta, fu acquistata da Giuseppe Stella, il quale negli anni 1867-68 la ricostruì quasi completamente, decorandone la facciata con stucchi e l’interno con marmi e dipinti. Alcuni di questi vi si conservano tuttora.
Gestita da massari, fino a tempi recenti è stata oggetto di devozione da parte della gente del posto e anche di abitanti della città. Vi si celebrava la festa nella quarta domenica di agosto, a partire dal 1870 anticipata alla seconda, con decreto vescovile del 1° agosto 1870.
I documenti che ci informano sugli autori delle pitture esistenti nella cappella non specificano chi ha fatto cosa. Probabilmente, però, sono da attribuire a Roberto Bonelli, oltre agli scomparsi vetri dipinti delle finestre (dei quali accenna Antonio Bosio nel fascicolo dedicato a questa cappella) ed al quadro dell’altare (pure scomparso), l’Adorazione dei pastori della volta (1867-68). Pur nella loro semplicità popolaresca, le figure sono eseguite con vivo espressionismo.
Di questo Roberto Bonelli, pittore uscito dall’Accademia Albertina, si conservano dipinti sulla volta centrale della chiesa parrocchiale di Poirino, in quella di Peveragno, nella chiesa di Madonna di Campagna di Torino e nella cattedrale di Asti.
I due tondi con i busti di Santa Cecilia che suona l’organo e di un’altra Santa non identificabile, eseguiti con tecnica più raffinata rispetto a quella dal sapore naïf del presepio della volta, sono probabilmente il lavoro che, secondo i documenti, venne eseguito per questa cappella da Giuseppe Massuero (1867-68).
Questo pittore nacque a Montiglio, in provincia di Alessandria, nel 1829. Conseguì il titolo di Dottore di Studio, Pittura, Architettura ed Ornato presso l’Accademia Albertina di Torino.
Ma fu apprezzato soprattutto per la sua attività di Architetto Disegnatore della Soprintendenza degli Scavi di Roma. Egli, cioè, in un’epoca nella quale la fotografia era ancora un mezzo dalle possibilità limitate ed eccessivamente costoso, si specializzò nella riproduzione con il disegno e con la pittura dei reperti degli scavi archeologici ai fini della loro catalogazione e della divulgazione sui libri e le riviste specializzate.
Fonte: www.100torri.it
Vedi Articolo Corriere di Chieri del 5 marzo 2004, ancora attuale: Chiesetta Santa Maria in Betlem
Segnalazione: Patrizia Figura, febbraio 2021
La chiesa parrocchiale di Chateau Beaulard sorge nel cuore del borgo stesso, a circa 1500 metri di quota, e fu fondata nel 1493, quando questo piccolo paese è diventato parrocchia, separandosi da quella di Beaulard. Visitata dal Vescovo di Susa monsignor Beggiano nel 1673, si presentava a navata unica, con ingresso laterale e con il campanile confinante con la sacrestia. Oggi l’ingresso è di fronte all’altare maggiore, preceduto da un poderoso porticato, costruito nel 1757, come attesta la data sopra l’arcata.
L’interno, sobrio nella decorazione delle pareti, presenta un profondo presbiterio ed un transetto con gli altari laterali.
Si accede alla chiesa attraverso un massiccio portone di legno, intagliato secondo i modi tipici della valle e che ben si inserisce nella struttura di pietra del portale, che reca sull’architrave la data 1740.
Il rétable dell’altar maggiore, databile all’inzio del sec. XVIII, è opera di una famiglia di intagliatori, che fu attiva nell’area Oulx-Cesana e che si rifaceva alla cerchia di Chaffrey Faure di Thures. E’ ripartito in tre spazi da quattro colonne tortili, interamente ricoperte da foglie di vite e grappoli d’uva. In alto al centro c’è il “petit rétable“, che presenta il Padre Eterno benedicente. Ai lati del dipinto, che rappresenta il martirio di San Bartolomeo, sono presenti due nicchie che ospitavano le statue dei Santi Giacomo e Rocco, purtoppo scomparse.
Sul lato sinistro si osserva l’altare della Madonna del Rosario, con il suo rétable, poco più recente di quello dell’altare maggiore. Domina al centro il grande dipinto con la raffigurazione della Madonna, San Domenico e Santa Caterina.
Sul lato sinistro c’è l’altare di Sant’Antonio: la sua decorazione settecentesca, più semplice, incornicia il dipinto con Sant’Antonio abate e San Francesco da Sales, che reca la seguente iscrizione: Ex voto habitentium huius loci Castri Bolarij anno 171?”. Il dipinto ha urgente necessità di essere restaurato, come si evince anche dall’immagine qui presentata.
Riadattato come altare rivolto al popolo, l’antico pulpito in legno intarsiato reca la data 1695 ed è firmato dal maestro Albert.
Il coro disposto a semicerchio nella zona antistante il presbiterio conserva dieci semplici scanni.
Il leggio corale, impostato su uno stipo per conservare i libri liturgici, presenta una decorazione ad intaglio e reca la data 1647.
La chiesa conserva anche una croce processionale in argento e rame del sec. XV.
Data compilazione scheda: 12 -10 – 2020
Rilevatori: Valter Bonello e Feliciano Della Mora
Fonte: http://www.oocities.org/boriog/Chiesa.html
Aggiornamento al 10 giugno 2021: All’interno è in corso uno scavo archeologico condotto direttamente dalla Soprintendenza e quindi la chiesa è chiusa al culto e non frequentabile fino al termine dei lavori.
Al confine con il comune di Piscina sorge il Castello o Cascina fortificata della Marsaglia (strada Castello, località Luisetti), celebre per l’omonima battaglia che si combatté nei suoi pressi il 4 ottobre 1693 fra i soldati francesi guidati dal Catinat ed i piemontesi comandati dal duca Vittorio Amedeo II di Savoia (vedi descrizione in calce).
La struttura si presenta con una pianta a quadrilatero a tre piani, anche se in origine doveva essere più alto, con una torre di spigolo, l’unica rimasta.
Sulla facciata rimangono i deboli segni delle antiche aperture del ponte levatoio che doveva essere inserito nella torre di ingresso.
Il preesistente fossato e le difese esterne sono completamente scomparse, mentre l’interno è stato pesantemente ristrutturato rispetto al progetto originario.
Da un’analisi dei materiali, mattoni e cotto, il Conti, nella sua opera “Castelli del Piemonte”, ha osservato che il Castello potrebbe essere stato costruito in più riprese, in quanto le due pareti poste a destra ed a sinistra della facciata principale sono molto diverse fra di loro.
La situazione attuale:
La cascina fortificata della Marsaglia, nei cui dintorni si svolse la disastrosa battaglia, è assolutamente abbandonata.
E’ un insulto ai 12.000 morti di quella battaglia (che tra l’altro in qualche modo si collega con la battaglia di Staffarda, vinta anche quella dal Catinat).
La proprietà è sconosciuta.
Vedi, nota sulla battaglia di Marsaglia:
– https://it.wikipedia.org/wiki/Battaglia_della_Marsaglia
– Rivista n. 186 dell’Associazione VIVANT, allegata: VIVA 186 Cumiana e Marsaglia
Approfondimenti da effettuare:
– scrivere a tutti i Comuni circonvicini che nel 1913 contribuirono alla costruzione del masso con la croce Barone, ricordato poi nel 1993 (vedi foto).
– scrivere al Museo Pietro Micca per acquisire nuove informazioni.
Vedi anche: https://www.comune.volvera.to.it/vivere_il_comune/territorio/territorio_2.html
Nell’abitato di Piobesi e nei pressi dell’antico Molino sorge un notevole edificio di culto dalle splendide forme barocche settecentesche. Si tratta della Chiesa dello Spirito Santo fatta edificare dalla omonima Compagnia religiosa (battuti bianchi) nel primo decennio del sec. XVIII.
La costruzione dell’edificio religioso iniziò negli anni 1703-4 sulla base di una precedente più piccola cappella. I lavori si protrassero fino al 1712 anno in cui risulta aperta al culto.
La bella e rustica facciata in cotto rossiccio come la si può vedere tutt’oggi è opera progettuale dell’ing. Giovanni Tommaso Prunotto allievo del famoso Juvarra e risale all’incirca all’anno 1733.
L’interno a navata unica è ricco di sfarzose decorazioni ed anche belle prospettive, che però attendono una accurato e deciso restauro. Notevole anche l’altar maggiore tutto in vivace marmo. Gli altari laterali in stucco, abbastanza deteriorati dall’umidità attendono anch’ essi un bel restauro. Da segnalare gli stalli del coro in legno di noce rosso progettati nel 1763 dal famoso arch. Bernardo Vittone. Ancora da segnalare l’organo, al presente ormai inservibile, costruito a metà del sec. XVIII ed una bella statua dell’“Ecco homo” caratteristica presenza in molte confraternite della zona.
Davanti a questo edificio religioso del centro piobesino, sorge una armoniosa piazzetta, piazza Paracleto, resa aggraziata dal fondo in acciottolato punteggiato da ciuffi d’erba ed in leggera pendenza.
Con la quasi totale fine delle Compagnie religiose negli anni ’70 dello scorso secolo, e questa di Piobesi non fece eccezione, la Chiesa dello Spirito Santo rimase quasi del tutto chiusa al pubblico, se si eccettua qualche sporadica apertura per visite storico, artistico e turistico, come quelle organizzate dall’Associazione Progetto Cultura e Turismo di Carignano.
L’attuale proprietario di tale edificio è la Parrocchia della Natività di Maria Vergine di Piobesi.
Nel ricordo di qualche anziano è rimasta viva la processione del Giovedì Santo, alla quale intervenivano numerosi confratelli della Compagnia in lungo abito bianco detto “camus”, e con in testa al gruppo il “cristoforo” cioè il fratello incaricato di portare la croce. Tale solenne processione partiva proprio dalla soglia di questa Chiesa e dopo aver percorso le vie cittadine vi ritornava.
Nel 2014 è stato predisposto a cura degli architetti Carla Alessandria ed Alberto Anania (Emmequattro s.r.l.) un progetto completo di restauro conservativo e di riabilitazione strutturale della Chiesa, in seguito alla messa in opera per un anno di un sistema di monitoraggio continuo di alcune lesioni.
Il progetto, approvato dalla Soprintendenza nel settembre 2014, non ha per ora purtroppo trovato coperture finanziarie idonee ad avviare l’intervento di recupero del bene (http://www.studioemmequattro.it/chiesa-dello-spirito-santo—piobesi-t.se–to-.html).
Bibliografia:
– Michele Tamagnone, Piobesi nei 12 secoli della sua storia, a cura di Rinaldo Merlone e Maria Delfina Oddenino, Piobesi. 1985.
– Pieghevoli a cura dell’Associazione Progetto Cultura e Turismo, 2017 e segg.
Autore: Gervasio Cambiano – cambianogervasio@gmail.com
Aggiornamento situazione al 12 febbraio 2021:
– Proprietà della parrocchia. Il Comune è interessato al recupero, trovando la copertura finanziaria. Le chiavi le possiede l’Ufficio Tecnico del Comune.
La Chiesa conventuale consacrata della Ss.Annunziata di Collegno si trova in via Martini XXX Aprile all’interno della Certosa Reale attualmente di proprietà parte dell’ASL 3 e parte del Comune di Collegno. La Chiesa è a navata unica con pulpito in legno, con stucchi e soffitto affrescato.
Notizie storiche ed artistiche:
La Certosa, voluta da Maria Cristina di Francia, I° Madama Reale, con posa della prima pietra nel 1648, fu affidata ai monaci certosini. I locali dell’attuale chiesa in origine furono adibiti a refettorio. Fanno parte del primo complesso storico la Chiesa della Santissima Annunziata, le Tombe dei Cavalieri della Santissima Annunziata e l’Aula Hospitalis.
Alla successiva trasformazione contribuirono artisti piemontesi per i dipinti ed i fratelli Somasso luganesi per gli stucchi. Tante delle opere che ornavano in origine la chiesa sono state nel tempo sottratte.
La Certosa fu sede dei frati Certosini per oltre 200 anni ed in questo arco temporale il complesso si arricchì, man mano, di opere architettoniche ed artistiche realizzate dall’Architetto Filippo Juvarra (progettista dell’ampliamento nel 1700 e del portale di ingresso – ultimato nell’anno 1737 – per volere del Re Carlo Emanuele III in occasione delle sue nozze con Elisabetta di Lorena).
Napoleone, la Restaurazione, la legge Siccardi ed il definitivo abbandono del complesso da parte dei Certosini per la trasformazione nella seconda metà dell’ottocento in Ospedale Psichiatrico, contribuirono a questi “prelievi”. Di alcuni si conosce anche l’attuale collocazione perché regolarmente ceduti.
Situazione di degrado:

Il pulpito ligneo necessita di una pulizia a fondo e di alcuni importanti consolidamenti; le cornici a stucco hanno gli stessi problemi.
Il distacco di decorazione delle pareti e le enormi macchie bianche dovute alle infiltrazioni di acqua piovana dal tetto, peraltro parzialmente sistemato anni fa per evitare il peggio.
Durante le visite guidate, per motivi di sicurezza, non è possibile entrare in chiesa, che la si può ammirare solo affacciandosi alla porta d’ingresso.
Aggiornamento al 22 febbrario 2021: La proprietà della Chiesa è dell’ASL 3, ma in comodato d’uso al Comune di Collegno, che gestisce le visite in sicurezza.
Sarebbe intenzione del Comune intervenire a migliorare la situazione interna, ma è in attesa delle adeguate coperture finanziarie.
Per i torinesi di oggi, il termine “Drosso” è noto quasi esclusivamente per la presenza dell’omonima uscita della tangenziale; per i residenti, la parola si contestualizza più fortemente nella toponomastica del quartiere Mirafiori Sud, in quanto strada del Drosso è una delle vie principali, una sorta di piccola autostrada di periferia, con da un lato gli squallidi casermoni anni ’70 e dall’altra i campi: strada del Drosso è l’ultimo lembo di Torino, prima della campagna.
Forse, però, anche i residenti (o, almeno, buona parte di essi) ignorano che il termine Drosso è da collegarsi ad un antico e glorioso maniero del Piemonte che fu, che ancora oggi sorge in quel di strada del Drosso, appunto, a poca distanza dal confine di Beinasco.
La sua posizione, oggi, è tra le più scomode che si possano immaginare. In mezzo ad un fazzoletto di terra tra strada del Drosso e l’anello autostradale, il povero castello appare come un fantasma di sé stesso, abbandonato e dimenticato anche dai torinesi.
Il Drosso rappresenta uno dei monumenti più antichi di Torino.
Nessuna cronaca tramanda l’anno di costruzione della prima struttura fortificata. Per lungo tempo gli edifici del Drosso dovettero essere una grangia ben fortificata, con mura robuste, sorte forse intorno alla corte quadrata di una più antica ed ipotetica villa romana.
L’edificio era di proprietà dei conti di Savoia, che verso il 1233 al Drosso misero i monaci benedettini cistercensi, provenienti dalla già potente Abbazia di Staffarda, anche per sorvegliare il territorio. L’operosità dei benedettini creò prosperità e diede avvio al Drosso a numerose attività, quali la sartoria, la conceria, la mascalcia, la calzoleria, il mulino, il forno.
Al Drosso i monaci di Staffarda continuarono a curare l’ingrandimento dei propri beni fino a quando, dopo alterne vicende politiche e, forse, anche a causa di continue contese, il 21 maggio 1334 l’abate di Staffarda vendette la grangia del Drosso e tutti i suoi beni a Corrado di Gorzano, già castellano a Moncalieri; da lì, la proprietà passò ai conti Vagnone di Trofarello, che ne fecero una fortezza molto simile a quella che oggi ancora si può osservare: già nel 1361 la grangia era nominata come castello.
I Vagnone, una delle più antiche casate piemontesi, non badarono a spese: il castello del Drosso fu grazie a loro un luogo di primo piano del panorama dell’agro attorno a Torino, e qui nel XV sec. fondarono anche un ricetto, poi una segheria, un mulino e altri edifici.
Ancora oggi attorno al castello vi sono due cascine, la Torta-Gromis e la Robilant-Perino.
Nel 1539 Guglielmo Gromis di Trana acquistò gran parte dei frazionamenti, che da quel momento rimasero per secoli in proprietà della famiglia Gromis.
Dal 1539 il castello del Drosso diventò residenza di campagna delle nobili famiglie che frequentavano la corte ducale della vicina reggia di Miraflores, la cui ricchezza fece trascurare il Drosso, che venne così risparmiato da guerre e saccheggi.
Il discendente Carlo Gromis di Trana nell’Ottocento comperò i lotti del castello del Drosso non ancora in proprietà della famiglia e restaurò l’intero castello.
Ad oggi il castello, privato, è al centro di un vasto progetto di riqualificazione che da anni si promette ma che non è ancora partito.
Così, il Drosso cade a pezzi, ed i torinesi stessi ignorano la sua esistenza.
Situazione di degrado:
Negli ultimi decenni, il Castello è stato visitato dai ladri di rame e altri personaggi poco raccomandabili e irrispettosi in cerca di oggetti di valore, molti in cerca di chissà quali passaggi segreti o tesori. Il Castello è stato spogliato, ma pare molto più fortunato di altri manieri del torinese: la costruzione appare solida, è in attesa di un nuovo proprietario che sia in grado di valorizzarlo.
Vedi anche:
– Chi vuole il castello del Drosso? https://torinostoria.com/chi-vuole-il-castello-del-drosso/ in Torino Storia n. 38
– Chi vuole il Castello del Drosso ? Vedi: Castello del Drosso in Torino Storia n. 39
Rilevatori: Sergio Anelli e Giuseppe Arena
Descrizione del complesso, con ampia documentazione di immagini: Descrizione del complesso
Visione aerea di tutto il complesso: https://www.univoca.org/wp-content/uploads/Il-Drosso-dallalto.mp4
Bibliografia:
– – Silvia Baradel, Alessandro Bianco, Ilenia Zappavigna. IL CASTELLO DEL DROSSO: UN’ISOLA DA VALORIZZARE. Rel. Maria Adriana Giusti. Politecnico di Torino, Corso di laurea specialistica in Architettura, 2009.
Aggiornamento 26/03/2023: Attualmente in vendita all’asta presso la famosa casa Sotheby’s .
Vedi anche: https://www.piemontego.it/monumenti/torino-il-castello-del-drosso-in-abbandono 23 luglio 2025
Nel territorio del Comune di None ed in prossimità della sponda destra del torrente Chisola, sorge il Santuario (chiesetta) di San Ponzio.
Questo edificio religioso è visibile dalla statale 23 quella che da Torino porta a Pinerolo e Sestriere.
Risulta di proprietà della Parrocchia ed è in stato di abbandono, anche perchè è collocato in zona disabitata.
Leggi tutto nell’allegato: None, san Ponzio
Situazione attuale:
Oggi San Ponzio giace triste e solitario, attorniato da erbacce, e da edifici post-industriali mezzo abbandonati.
La facciata è pressoché ridotta all’osso. Svaniti gli affreschi. Scomparse le porte, sostituite d aprovvisorie chiusure.
La stradina di difficile accesso è diventata ricettacolo di rifiuti.
San Ponzio attende degli amici che lo salvino dall’oblio dei tempi.
L’affresco si trova all’interno della cappella intitolata a “S.Pietro della Roncaglia” in aperta campagna a lato di una strada campestre in prossimità dell’area archeologica di Bene Vagienna.
L’affresco è collocato sul muro di fondo, sopra l’altare e rappresenta la Madonna col bambino tra S. Pietro e S. Antonio abate. E’ in cattivo stato di conservazione e manca di diverse parti ormai irrimediabilmente perdute, ma più preoccupante è la presenza di graffiti che lo sfregiano.
Ad aggravare la situazione, purtroppo, la chiesa nella quale è collocato l’affresco è aperta e risulta esposta ad ulteriore degrado ed atti vandalici.
Riferimenti catastali: 44°33’23,60 N 7°50’42 E
Data soporalluogo: 17 aprile 2011
Nome rilevatore: Renato Airasca, Gruppo Archeologico Torinese
Aggiornamento del febbraio 2021, da parte di Michelangelo Fessia, presidente degli AMICI DI BENE:
– Dopo scontri e liti tra il Comune e la Diocesi si è arrivati a definire che la proprietà è della parrocchia di M. Vergine Assunta di Bene.
– Anni fa sono stati fatti dei lavori (tetto) e un restauro dell’affresco, poi la chiesa è stata in pratica abbandonata e ci sono stati pure dei vandali che in qualche modo hanno un po’ rovinato l’affresco.
– Recentemente grazie ad un finanziamento di IntesaSanPaolo sono stati fatti altri lavori all’esterno (rifatto muri e tetto) ma nulla all’interno e neppure per l’affresco. Sono stati dei lavori molto dispendiosi.
– Ora si è in attesa di reperire altri contributi per intervenire.

Cappella ad una navata di dimensioni m. 6×5.5 (internamente m. 5×4 altezza m.3 al colmo), dedicata all’Immacolata.
Campanile a vela, volta a botte, pareti in pietra internamente intonacate, pavimento in calcestruzzo.
Restauri del 1995/96 che, oltre ai pavimenti hanno interessato le pareti (salvo dove si sono salvati gli affreschi) ed il tetto.
Gli affreschi sono databili al 1727 come si legge sul cartiglio dell’affresco a fianco dell’altare.
Gli stessi contengono due immagini di Sant’Antonio Abate.
La cappella è consacrata e vi si tiene un’unica funzione annua; la chiave è reperibile presso gli abitanti del luogo.
Proprietà privata.
Data sopralluoogo: 22 maggio 2011
Nome rilevatore: Renato Airasca, Gruppo Archeologico Torinese.
I.G.M. f.55 II NO CONDOVE – Proprietà privata
L’affresco si trova all’interno di un piccolo edificio absidato, a pianta rettangolare, in buone condizioni di conservazione, con accesso principale al centro del lato minore e piccola apertura a circa tre quarti del lato lungo, entrambi ad arco in pietra e laterizio di buona fattura.
L’affresco occupava probabilmente l’intera area absidale fino al pavimento. Di esso resta un Cristo Pantocratore in mandorla, affiancato da personaggi, forse gli evangelisti con i loro simboli, poco leggibili. E’ stato restaurato ma sarebbero necessari ulteriori studi e accertamenti.
Bibliografia:
IL PIEMONTE PAESE PER PAESE, BONECHI EDITORE, voce BORGONE SUSA
Per quanto riguarda la figura di San Valeriano e i riti a lui collegati in Piemonte: www.santiebeati.it : SAN VALERIANO di Damiano Pomi
San Valeriano. Tra tradizione e religione nel territorio di Cumiana, di Diego Priolo in L’ECO DEL CHISONE 20 aprile 2000
Data sopralluogo: 17-05-2014
Nome del rilevatore: Patrizia Figura
Associazione di appartenenza: Amici della Fondazione Ordine Mauriziano
Cappella di modeste dimensioni a navata unica con una piccola facciata barocca e copertura di lose di grandi dimensioni. Le pareti sono in laterizio intonacato.
La cappella si trova all’interno di un cascinale in aperta campagna nei pressi della strada tra Cavallermaggiore e Monasterolo in località detta La Motta.

L’interno è quasi totalmente affrescato, sia sulla controfacciata che sulle pareti e soprattutto nelle campiture della volta a crociera.
Gli affreschi risalgono al XV secolo e sono stati attribuiti a Giorgio Turcotto da Cavallermaggiore da alcuni studiosi.
Attorno alla cappella si trovano edifici di interesse storico che presentano simboli dell’Ordine di Malta.
L’intero edificio presenta crepe. Soprattutto l’affresco della controfacciata e della parete sinistra mostrano evidenti segni di distacco.
Tutta l’area inferiore dell’edificio rivela ampi spazzi di danneggiamento e muffe dovuti a risalita dell’umidità.
Datazione: Periodo bassomedievale (X-XV sec. d.C.)
Materiale: Laterizio
Tecnica: Affresco
Stato di conservazione: Cattivo
Vincoli: La cappella è vincolata, ma non gli edifici circostanti.
Nota:
Il 18 maggio 2011 l’Architetto Silvia Gazzola della Soprintendenza di Torino ha compiuto un sopralluogo scattando numerose fotografie per documentare la situazione.
Link: http://archeocarta.org/cavallermaggiore-cn-cappella-di-san-giovanni-della-motta/
Data sopralluogo: 31-05-2011
Associazione: Gruppo Archeologico Torinese
Nome referente associazione: Bonello Valter
Aggiornamento al 19 febbraio 2021:
Borgata Motta San Giovanni: strada per Scarnafigi e Saluzzo, oltrepassata Motta Gastaldi, a 4,6 km, a sinistra una carreggiabile di 1 km conduce a Motta San Giovanni.
È una piccola cappella rettangolare (7,45 x 3,95 m. con una altezza di 4,00 m), e presenta un tetto in lose di pietra in discreto stato di conservazione. Era collegata direttamente al palazzo. Alla prima metà del ‘700 venne invertito l’accesso e la cappella, orientata oggi da levante a ponente, fu munita di una facciatina settecentesca tinta di bianco con timpano e lesene.
La navata della chiesa è divisa in due parti coperte da volte a crociera ed è tutta affrescata probabilmente dal pittore locale Giorgio Turcotto su probabile commissione di Merlo Piossasco, ammiraglio dell’Ordine di Malta dal 1478 al 1480.
Situazione di degrado: La facciata presenta da oltre 50 anni gravi lesioni esterne ed interne che hanno deteriorato l’affresco interno posto sopra la porta di ingresso che raffigura la Crocifissione. Altri danni nella parte bassa della facciata sono di più recente formazione. Una profonda crepa su un costolone della volta a crociera vicino all’altare parrebbe non strutturale e già documentata da S. Galletto in fotografia del 1967.
Attualmente (2021) l’antico palazzo dei Cavalieri di Malta è suddiviso in tre proprietà private di recente formazione.
Immagine: Esiste al fondo della navata sopra l’altare, una grande tela dipinta a olio, probabilmente commissionata da un altro commendatario della nobile famiglia dei Solaro di Monasterolo nella prima metà del Settecento come si evidenzia dallo stemma di famiglia con la croce di Malta, situato in basso a sinistra. L’antica icona posta sull’altare probabilmente andò distrutta. La tela in cattivo stato di conservazione raffigura la Madonna assunta in cielo, San Giovanni Battista e Sant’Antonio Abate. Si notano segni di distacco in varie parti. L’opera non presenta pregi particolari. La cornice non presenta alcun valore artistico.
Descrizione: La cappella è all’interno di una proprietà oggi privata che già dal 1055 apparteneva al priorato dell’Ordine di Malta. Il palazzo è munito di torre. Venne probabilmente restaurato nel 1435 da frà Giovanni, Precettore dell’Ordine di Malta. Successivamente altri commendatari dell’Ordine fecero affrescare la chiesa. In particolare si fa risalire la committenza ad un commendatario della nobile famiglia dei Piossasco per i tre stemmi di famiglia inseriti nella decorazione della volta. Ancora oggi la cappella è al servizio religioso di tutta la borgata.
Bibliografia:
– BONINO A., Chiesa Campestre della Motta di S. Giovanni presso Cavallermaggiore, Tip. G. Anfossi, Torino, SPABA, X, Torino 1926
– BONINO A., Giorgio Turcotto, pittore, Boll. Deputazione Subalpina di Storia Patria, sez. di Cuneo, 1942
– Storia del Piemonte, voll. II, Torino 1960
– Bonino Attilio, Storia della città di Cavallermaggiore: l’arte, 1926
– GALLETTO S., Cavallermaggiore, Storia, vita, arte, Pro Loco, Cavallermaggiore, 1967 – Vedi: Sebastiano Galletto, Storia, vita e arte
– PERA L.; GALLETTO S.; DI RICALDONE A., La cappella gentilizia di San Giovanni della Motta Cavallermaggiore, Ed. Gribaudo, Cavallermaggiore (CN), 1998
– CARITÀ G., in “Gentilhuomini Christiani e Religiosi Cavalieri. Nove secoli dell’Ordine di Malta in Piemonte”, a cura di Tomaso Ricardi di Netro e Luisa Clotilde Gentile, Electa, Milano, 2000
– Cavallermaggiore, San Giovanni della Motta, vedi: San Giovanni della Motta
Fruibilità e recapiti: aperto su richiesta – Comune di Cavallermaggiore – tel. 0172 381055
Internet:
– http://www.comune.cavallermaggiore.cn.it/
– http://archeocarta.org/cavallermaggiore-cn-cappella-di-san-giovanni-della-motta/
– https://www.chieseromaniche.it/Schede/818_CAVALIERI_DI_MALTA_O_SAN_GIOVANNI_CAVALLERMAGGIORE.htm
Rilevatori:
Maria Luisa Reviglio della Veneria, Valter Bonello
Galleria di immagini:
Cappella dedicata all’Annunciazione a giudicare dall’affresco della lunetta in facciata, molto degradato, con distacco di intonaco.
All’interno è presente un altro affresco degradato che presenta un’ampia crepa.
L’ingresso, ad arco a tutto sesto successivamente tamponato con porticina in legno, è esposto a Nord/Est.
Volta a crociera, stellata.
Pareti in pietra, pavimento in battuto. Pareti laterali e di fondo affrescate, la controfacciata semplice è decorata con girali.
Dimensioni: Cappella a navata unica, di dimensione m.2.40×3.30 circa (altezza al colmo m. 3.80).
Segnalazione di degrado-intervento:
L’edificio è in cattivo stato di conservazione ad eccezione del tetto rifatto da pochi anni a spese di un privato benefattore e quindi in ottimo stato. L’affresco in facciata versa in pessimo stato con gran parte dell’intonaco in fase di distacco.
All’interno sulla parete sinistra vi è un affresco, di discreta leggibilità, raffigurante S. Sebastiano (legato a un tronco incorniciato da architettura a colonne, con ai lati S. Rocco e S. Antonio abate. Sulla cornice in basso si nota un’iscrizione che riporta, tra l’altro, la datazione (1608).
Sulla parete di destra (esposizione a sud/ovest) vi è l’affresco peggio conservato (si intravede un S. Lorenzo) per il resto è perduto anche per la tamponatura di un altro arco preesistente su questa parete.
Sulla parete di fondo, sopra l’altare, vi è un affresco raffigurante nel registro inferiore S. Lucia a dx e S. Caterina a sx in discrete condizioni, nella lunetta sovrastante Crocefissione con Madonna e S. Giovanni con sullo sfondo probabile rappresentazione della città di Gerusalemme. Quest’ultimo affresco presenta un’ampia crepa (forse strutturale visto che la parete di fondo sorge sullo strapiombo) che parte dal vano del tabernacolo e con andamento verticale lo attraversa tutto.
Riferimento geografico: sorge nella frazione totalmente abbandonata di Castagneretto; lungo il GTA529 all’incrocio con il sentiero “dei monaci”; ad una altitudine di m. 936.
Info:
Proprietà: Comune
Uso attuale: Abbandonata
Giorni e orario di apertura: Sempre aperta
Data rilevamento: 05-03-2012
Nome compilatore: Renato Airasca
Associazione: Gruppo Archeologico Torinese
E’ la chiesa più antica di Brusasco e può essere considerata una delle più importanti testimonianze del romanico piemontese. Costruita intorno all’anno mille su una preesistente struttura del V-VI secolo, essa ne ha inglobato diverse parti, alcune delle quali ancora visibili.
Parrocchiale fino al 1592, dopo un periodo di abbandono negli anni sessanta del 1600 viene adibita a cappella del Cimitero e vi fu realizzato un nuovo altare dedicato a San Michele.
La struttura originaria era stata concepita a due navate, ma gli straripamenti del Po e i lunghi periodi di abbandono portarono alla rovina della navata nord, per cui oggi appare a navata unica. Nuovamente abbandonata durante il sec. XIX, nel 1889 diviene monumento nazionale e viene sottoposta a decisi interventi di restauro nel decennio successivo.
Fino agli anni quaranta del secolo scorso è stata utilizzata per le celebrazioni funebri; dopo un ulteriore periodo di abbandono, grazie all’impegno del Comune e al finanziamento di enti vari si è proceduto ad un primo intervento di mantenimento e pulizia (vedi: http://www.comune.brusasco.to.gov.it/dpage.asp?id=arte).
Segnalazione di intervento:
Campanile decisamente pericolante e pericoloso.
Crepa vistosa sulla facciata; monofora centrale dell’abside con affresco del Cristo in pietà sovrastata da una profonda crepa che risale fino al catino absidale; all’esterno la medesima crepa scende fino a terra.
Risalita di umidità sulla ex navata sinistra, tamponata da muro affrescato.
Parete laterale destra interessata da numerose crepe; guano di uccelli che sta seriamente danneggiando l’altare ligneo ed un altarino ligneo laterale.
Info:

Via Giuseppe Mazzini – BRUSASCO (To)
Vedi anche: http://archeocarta.org/brusasco-to-chiesa-di-san-pietro-vecchio/
Data sopralluogo: 19-06-2011
Nome compilatore: Graziella Mussetta
Associazione: GAT
Si segnala altresì una tesi di laurea in architettura (studio molto dettagliato per un intervento di restauro, risalente al 2005 pagg. 147, di Tiziana Guasco (rel. Rosalba Ientile, Politecnico di Torino), di cui si allega l’indice:
CAPITOLO 1-Inquadramento territoriale
1.1 Il territorio di Brusasco e la sua storia – 1.2 Il posizionamento della chiesa
CAPITOLO 2- La chiesa cimiteriale di San Pietro
2.1 Regesto storico – 2.2 Dai Testimoniali di Transferta – 2.3 Analisi delle vicende costruttive – 2.4 I rilievi di Alfredo D’Andrade – 2.5 Descrizione della chiesa – 2.5.1 L’esterno della chiesa – 2.5.2 I capitelli della parete nord – 2.5.3 L’interno della chiesa – 2.5.4 Gli affreschi
CAPITOLO 3- lI rilievo
3.l Il rilievo fotografico – 3.2 Il raddrizzamento fotografico – 3.3 Il rilievo geometrico – 3.4 Il rilievo materico – 3.4.1 Il laterizio – 3.4.2 La pietra – 3.4.3 Il legno – 3.4.4 Il ferro
La Chiesa di San Pietro Vecchio a Brusasco
CAPITOLO 4- Analisi dello stato di conservazione
4.1 I fenomeni di degrado e di dissesto – 4.2 Principali patologie di degrado riscontrate – 4.2.1 Difetti minori – 4.2.2 Difetti seri – 4.2.3 Difetti gravi – 4.3 Analisi del dissesto
CAPITOLO 5-Verifiche statiche
5.1 Verifica dell’orditura del tetto – 5.2 Calcolo del carico neve – 5.3 Caratteristiche geometriche del tetto – 5.4 Verifica di un listello – 5.5 Verifica di una terzera – 5.6 Verifica di un puntone – 5.7 Verifica delle strutture voltate – 5.7.1 Il metodo di Méry – 5.7.2 Metodo di ricerca della cerniera plastica – 5.7.3 Svolgimento delle verifiche – 5.8 Arco A – 5.9 Arco B – 5.10 Semiarco C – 5.11 Arco di trionfo – 5.12 Verifica delle strutture a cupola – 5.13 Catino absidale
CAPITOLO 6- L’intervento di conservazione
6.1 Metodologie di intervento – 6.2 Interventi riparativi – 6.2.1 Le operazioni di pulitura – 6.2.2 Le operazioni di integrazione
La Chiesa di San Pietro Vecchio a Brusasco
6.2.3 Le operazioni di consolidamento superficiale – 6.2.4 I trattamenti protettivi – 6.2.5 I trattamenti per eliminare l’umidità
Bibliografia
Repertorio fotografico:https://www.chieseromaniche.
Aggiornamento situazione al 1 febbraio 2021:
– Interpellato il Comune, informa che è in corso un progetto di totale intervento sulla struttura e sugli affreschi. Il progetto è in attesa di copertura finanziaria da parte di Enti bancari interpellati.

La chiesa cimiteriale di San Giovanni, antica parrocchiale, contiene il più completo e imponente ciclo di affreschi gotici dell’Astigiano.
La chiesa ha la facciata ottocentesca, ma il resto della costruzione ha mantenuto in parte caratteri romanici. Pare che una prima costruzione potesse esistere già prima del 1200, forse addirittura verso il 1000.
L’ interno, a una sola navata, è decorato con motivi a stella risalenti al secolo scorso, con l’eccezione della zona absidale. L’apertura di alcune finestre ha in parte rovinato gli affreschi, restaurati negli anni Ottanta e Novanta dal laboratorio Nicola di Aramengo. Discrete porzioni della parete destra del presbiterio sono andate perdute e alcuni lavori di muratura sulla parete destra della navata hanno compromesso altri dipinti.
La chiesa romanica originale ha subito in più tempi vari ed importanti rimaneggiamenti.
I primi due ‘piani’ del campanile sono l’unica parte oggi esistente che risalgono sicuramente all’epoca romanica.
La parte del presbiterio dovrebbe risalire alla prima metà del XIV secolo.
Le decorazioni, a parte lo splendido velario bianco, legato con anelli ad un grosso tronco di legno, sono costituite da fasce vegetali e geometriche che ornano i costoloni della crociera e la parete interna del sottarco. AI di sotto di una serie di Sante compaiono ripetuti gli stemmi delle famiglie committenti Bruno e Scarampi, il che consente di datare l’opera all’incirca al 1480.
L’interno, a una sola navata, è decorato con motivi a stella risalenti al secolo scorso.

Sulla parete di fondo sono effigiati otto Apostoli, inseriti in finte nicchie con archetti marmorei; gli altri quattro Apostoli sono disposti due per parte sulle pareti laterali. Alle pareti si susseguono otto pannelli con le storie di San Giovanni Battista patrono della chiesa. Al di sopra, nella lunetta, troviamo la Crocifissione; il Cristo in croce è andato perduto a causa dell’apertura di una finestra, ma restano la Vergine dolente e San Giovanni. Alle pareti si susseguono otto pannelli con le storie di San Giovanni, tra cui molto particolare per costumi e resa cromatica è la scena del banchetto, in cui è recata la testa mozzata del Profeta. Anche la volta ed il sottarco sono affrescate con scene di vita dei santi, così come la navata.
Nella volta le quattro unghie contengono una il Cristo Pantocrator, tra Maria e Giovanni Battista, le altre gli Evangelisti, con i loro simboli, seduti su scranni marmorei. Nel sottarco sono raffigurate Santa Lucia, Santa Apollonia, Sant’Agata, Santa Maria Maddalena e, nella parete interna dello stesso, tre Santi non ben identificati entro clipei. Sulla parete della navata destra, probabilmente di altro autore ed eseguita alcuni anni dopo (1502), sono effigiati l’Incoronazione della Madonna, il Cristo di Pietà, alcuni frammenti di Santi, di cui uno forse è San Rocco.
Gli autori delle pitture sono probabilmente diversi, ma medesimo è l’ambito culturale: quello della pittura ligure-monregalese di fine quattrocento.
Uno di questi, definito ‘Maestro di Roccaverano’, ha lasciato altre testimonianze di sé in Santa Maria del Casato a Spigno, in San Lorenzo a Murialdo, in santa Maria delle Grazie a Canizzano.
Segnalazione di degrado-intervento: Trasudazione di umidità all’interno a sinistra della porta di ingresso. Crepe forse strutturali.
Frazione: Vengore località San Giovanni – Roccaverano (At)
Riferimento geografico: collocazione in alto sul poggio, adiacente all’antico cimitero.
Proprietà: Diocesi di Acqui Terme.
Uso attuale: officiata regolarmente in caso di sepolture.
Note: Affreschi restaurati nel 1978- 84 e nel 1990-91 dal laboratorio Nicola di Aramengo.
Link: http://archeocarta.org/roccaverano-at-chiesa-di-san-giovanni/
Data sopralluogo: 19-06-2011
Nome compilatore: Graziella Mussetta
Associazione: GAT
Aggiornamenti al 2 febbraio 2021:
– La chiesa è stata inserita fra “I luoghi del cuore” del FAI.
– Il monumento avrebbe necessità di un intervento di restauro soprattutto nelle strutture.
Schede che al momento vengono considerate definite in quanto la situazione è cambiata per interventi di restauro avvenuti, in corso o per altri motivi.
Da otto anni il Mastio dell’antica Cittadella di Torino, restaurato e rinnovato con un investimento di molti milioni di euro da parte dell’Amministrazione comunale, è chiuso ed inutilizzato, salvo qualche occasionale mostra itinerante di breve durata.
L’intervento è stato fatto con l’obiettivo di accogliere nuovamente le collezioni del Museo Storico d’Artiglieria in un allestimento contemporaneo, per restituire ai cittadini, agli studiosi e ai turisti quel prezioso e insostituibile patrimonio storico e culturale.
Purtroppo, questo non è ancora avvenuto né sono state avviate iniziative per ridare vita all’edificio, voluto dal duca di Savoia Emanuele Filiberto nel 1563 a tutela della sua capitale, e molti, fra coloro che ancora lo ricordano (è ormai chiuso da decenni), si chiedono perché l’Esercito, che l’ha riavuto in consegna, non provveda al riallestimento, avvalendosi anche delle tante risorse che il territorio può coinvolgere e mettere a disposizione.
Questo Museo che non ometteva nessun dettaglio per aggiornare e valorizzare l’Armata piemontese, da troppo tempo è trascurato e precluso al pubblico.
Eppure, le ricche collezioni del Museo offrono infinite possibilità di studio e di approfondimento: esse raccontano la storia delle armi, che è intrecciata con quella delle culture e del progresso tecnologico di tutti i popoli, con le loro molteplici espressioni artistiche ed i diversi contesti ambientali.
Inoltre quanti temi potrebbero essere esaminati e sviluppati nell’ambito del Museo? Le armi bianche dell’Africa subsahariana o i fucili europei a ruota? I cimeli della Magna Grecia o le armi della Grande Guerra?
Solo la curiosità e la fantasia potrebbero dettare gli argomenti da trattare entro un Museo che ha le potenzialità per coinvolgere, con criteri contemporanei, giovani e anziani, turisti e cittadini, in un avvicendarsi di iniziative che l’Associazione Amici tenacemente spera possano finalmente avviarsi per una tanto attesa e doverosa rinascita.
Dal 2008 le collezioni sono però immagazzinate in alcuni locali della Caserma Amione e solo pochi oggetti vengono a volte concessi in prestito ad altre Istituzioni: sicuramente, una volta riallestito il Mastio, occorrerà assegnare anche a loro una collocazione definitiva.
L’Associazione Amici del Museo, consapevole di questo patrimonio, opera da oltre 25 anni per superare le difficoltà ed offrire all’Istituzione gli strumenti di conoscenza necessari per reinserirlo nel contesto culturale e turistico della Città di Torino.
L’UNI.VO.C.A, che riunisce 34 Associazioni di Volontariato piemontesi, rivolge un accorato appello affinché non si abbandoni nuovamente al degrado questa testimonianza del passato militare della Città e si valorizzi una raccolta museale che abbraccia l’evoluzione delle conoscenze tecnologiche dell’umanità nel corso dei millenni.
Torino deve impegnarsi per conoscere, preservare e valorizzare una così significativa parte della sua storia per consegnarla intatta alle generazioni future.
Situazione al 8 marzo 2021
Ottobre 2023 – Riapertura del Museo: InformaSoci 67 dicembre 2023
Edificio ad aula rettangolare con abside semicircolare, facciata seicentesca e una cappella preesistente addossata lateralmente. Muratura di mattoni a vista.
La cappella laterale destra e la costruzione esterna addossata sono seriamente danneggiate sia negli stucchi che nelle parti affrescate.
In pericolo la stabilità stessa dell’edificio.
Segnalazione di degrado-intervento:
La cappella laterale destra dedicata a Maria Stella Maris è seriamente danneggiata e pericolante, con danni che non solo minacciano gli stucchi e le parti affrescate, ma la stabilità stessa dell’edificio.
Dall’esterno la costruzione addossata in corrispondenza di detta cappella è pericolante e per un crollo all’interno la porta non è più apribile.
Info:
Strada provinciale Settime-Camerano-Casasco; sul poggio sovrastante il cimitero – Cinaglio (At) – Strada Cimitero.
Proprietà: Comune di Cinaglio
Uso attuale: officiata una volta l’anno
Vedi anche: http://archeocarta.org/cinaglio-at-chiesa-di-san-felice/
Data sopralluogo: 19 giugno 2011
Nome compilatore: Graziella Mussetta
Associazione: GAT
Aggiornamenti:
– Iscrizione della Chiesa di San Felice all’ART bonus 2019 (Interventi di manutenzione, protezione e restauro di beni culturali pubblici), da parte del Comune, vedi: https://artbonus.gov.it/117-31-chiesa-di-san-felice.html
– Nel 2020, la Chiesa è stata inserita tra i “Luoghi del cuore” del Fai ed è stata inserita nel circuito “Chiese porte aperte“.
– Nell’agosto 2020 è stata costituita un’associazione per la tutela della Chiesa, denominata “#ilovesanfelice“, vedi: https://www.ilovesanfelice.it/
– Il 19 ottobre 2020 il comune di Cinaglio ha fatto effettuare una valutazione per la sistemazione della pavimentazione della chiesa, vedi: http://www.comune.cinaglio.at.it/portals/1215/SiscomArchivio/2/valutazionearcheologica.pdf
– Il 31 marzo 2026, Carla Ponzio, presidente dell’Associazione Ilovesanfelice.it, ci segnala che, dopo interventi di monitoraggio effetuati nell’edificio, non risultano pericoli di stabilità dell’edificio.
Struttura di monumento romano.
Nucleo in opera a sacco rivestito esternamente in opus latericium (anticamente rivestito in marmo di Valdieri) ed intervallato da una soglia in pietra di Langa anzichè dal classico doppio corso in cotto.
Stato di degrado aggravato dall’utilizzo nel restauro di malte non idonee.
Frammenti marmorei di elementi architettonici lasciati a terra.
Rischio di asportazione dei marmi lasciati sul terreno.
Data sopralluogo:11 aprile 2011
Nome rilevatore: Graziella Mussetta, Gruppo Archeologico Torinese.
Internet: http://archeocarta.org/pollenzo-cn-citta-romana-di-pollentia/
Aggiornamento: a cura di Valter Bonello – Situazione invariata, al mese di aprile 2023;
proposta a cura di Graziella Mussetta: ricovero materiali sparsi in vetrina da collocare in evidenza all’interno dell’hotel.
Aggiornamento: a cura Feliciano Della Mora, 8 maggio 2023.
Preso contatto con la proprietà “Agenzia di Pollenzo Spa” (sig. Pierluigi Piumatti), siamo stati informati di essere al corrente della situazione e in continuo monitoraggio in accordo con la Soprintendenza.
Invio di nostra proposta collaborativa per la tutela del materiale sparso attorno al Torrione, 10/05/2023.

Il complesso di “Villa Moglia”, situato sulla collina a pochi minuti di strada da Torino, in un parco secolare di 30.000 mq, ha origine agli inizi del ‘600 come “piccolo castello” trasformato poi nel 1750 in una delle più importanti Ville del Piemonte.
Dal sito F.A.I. 2010 I luoghi del cuore:
“Opera architettonica di inestimabile valore, Villa Moglia è situata sulle colline torinesi e si estende su una superficie di 6.138 mq, il parco secolare che la circonda raggiunge i 30.000 mq. Questa Villa nacque in origine come opificio tessile di proprietà della famiglia Turinetti, poi nel 1725 fu incaricato l’architetto Luigi Barberis… per trasformare l’opificio in dimora nobiliare per la stessa famiglia Turinetti. Della vecchia planimetria di Villa Moglia, disegnata da Barberis esiste anche una copia che è stata esposta nel 1926 alla mostra di retrospettiva a Torino.
Molti pensano che l’origine del nome Moglia sia da attribuire al suolo paludoso sul quale è costruita la Villa, ma in realtà il nome Moglia deriva da una famiglia anticamente detentrice di una proprietà distante due miglia della Villa chiamata Borgata di Moglia Tana. Villa Moglia si sviluppa su due piani più cantina e sottotetto e ha una planimetria molto particolare: la struttura centrale, e probabilmente la più notevole dal punto di vista delle decorazioni interne, è a forma di U, da questa attraverso un corridoio in parte crollato si raggiunge una vasta sala attrezzata con numerosi seggiolini e un bagno, l’ipotesi più idonea è che fosse una sala per riunioni o simili; un’altra ala dell’edificio si estende in lunghezza sul retro della struttura centrale. All’interno del complesso è presente una piccola chiesa ancora provvista di altare ma in estremo stato di degrado, causato in parte delle molte sette sataniche che si dice abbiano reso la chiesetta di Villa Moglia una delle loro sedi abituali per svolgere raccapriccianti riti di sangue. In buona parte della villa i soffitti sono affrescati e si possono ammirare ancora dei meravigliosi dipinti a muro in tema giapponese.
I vandali hanno devastato e dilaniato in ogni sua parte questa maestosa costruzione che da troppi anni è lasciata esposta alla stupidità umana e alle intemperie. A pochi metri di distante dal cancello di Villa Moglia è situata un’altra struttura, in parte ricoperta dalla vegetazione, che dalla forma ricorda una stalla. Tutto il complesso è circondato da un meraviglioso giardino, che, anche se incolto, ha mantenuto tutto il suo fascino; un alto muro circonda la tenuta interrotto a tratti da ampi cancelli in ferro. Visto lo stato di degrado in cui versa La Moglia il 31 gennaio 2007 il consigliere comunale Andrea Tronzano presentò una interpellanza per conoscere il destino della Villa e scoprì che questa in realtà non è proprietà del comune di Chieri, ma di quello di Torino. L’interpellanza servì a poco e oggi la villa è abbandonata e lasciata al suo destino.
Poco conosciuta dai chieresi, questa villa è una delle più importanti e maestose del torinese e lo stato in cui versa non fa auspicare una sua futura rinascita; l’età del suo definitivo abbandono risale a circa 20 anni fa, ma la scarsità di fondi per la manutenzione dello stabile avevano già messo a repentaglio le meraviglie di questa villa. Ora La Moglia giace sola, in mezzo alle colline chieresi, in attesa di qualcuno che la riporti al suo antico splendore e la strappi dall’insidiosa vegetazione che lambisce i suoi muri.”
Segnalazione di degrado: avanzato stato di degrado ed abbandono.
Strada vicinale della Moglia, 12-18 – Chieri (To)
Riferimento geografico: L’immobile, pur di proprietà del Comune di Torino, si trova nel comune di Chieri, nel comprensorio dell’area ex istituto Bonafous.
Descrizione:
Complesso architettonico settecentesco costituito da sei corpi di fabbrica con sviluppo planimetrico scandito da un corpo principale ad U, sul quale si addossano delle maniche ortogonali ed una parallela. Queste aggiunte compongono due cortili oltre a quello centrale e riquadrano nella parte retrostante due giardini a gradoni. L’impianto originario ha subito diversi interventi di trasformazione che ne hanno modificato la destinazione d’uso e la tipologia del fabbricato. Associato a questo il cosiddetto “tinaggio”: fabbricato rurale che si sviluppa su tre livelli e che ha mantenuto le caratteristiche originarie. Un ampio parco incornicia l’intero compendio.
Dimensioni: Superficie mq: 6.138
Datazione: Periodo rinascimentale-moderno (XV-XVIII sec. d.C.)
Autore: Luigi Barberis
Stato di conservazione: Pessimo
Danni dovuti a: Crollo
Vincoli: Tutela Ministero per i Beni e le Attività Culturali
Bibliografia:
“La Repubblica” 4 agosto 2014 – Il gioiello del ‘700 in preda ai vandali. Storia e disastri di Villa Moglia di J. Ricca
Segnalazioni e risposte:
Nostra segnalazione in data 1 giugno 2015: UNIVOCA Segnalazione Villa Moglia 1 giu 2015
Nostra segnalazione in data 7 novembre 2018: UNIVOCA Segnalazione Villa Moglia, Chieri, 7 nov 2018-signed
Risposta Prefettura di Torino, 15 nov 2018: Risposta Prefettura Torino
Risposta Comune di Chieri, 8 nov 2018: Risposta Comune di Chieri, 8 nov 2018
Link: http://www.chieri.info/contents/villa-la-moglia-chieri
http://www.comune.torino.it/ville/bando1.pdf
http://www.fondocittaditorino.com/ita/il-nostro-portafoglio/portfolio_scheda.
http://iluoghidelcuore.it/luoghi/to/chieri/villa-moglia/12436
http://www.comune.torino.it/torinofondo /schede/villa moglia/pdf/soprintendenza-villa-moglia.pdf
http://www.padretiziano.it/manoscritti/282.pdf
Vedi anche: Villa Moglia_TorinoStoria in Torino Storia Anno 5 – n. 49 maggio 2020
Immagine d’interno a Villa Moglia nel 1870:

Ultime Notizie (13 marzo 2021):
Un compratore in arrivo per la storica Villa Moglia a Chieri, sì della Soprintendenza,
Top secret su acquirente e cifra. Potrebbe diventare un albergo di lusso con beauty farm.
Magione nobiliare, frequentatissimo istituto salesiano e da ultimo luogo di degrado, occultismo e, secondo alcuni, messe sataniche.
Nella sua storia Villa Moglia, gioiello architettonico tutelato dalla soprintendenza nella collina di Torino, è stata tante cose: nata come opificio tessile della famiglia Turinetti, dall’inizio del Settecento è stata trasformata in residenza di pregio dei proprietari dall’architetto Luigi Barberis. E ora potrebbe tornare a essere un luogo di lusso visto che il fondo immobiliare Prelios, che ne ha il controllo dopo che nel 2007 la Città ne ha affidato la gestione a una delle sue società cartolarizzate, sta per chiudere un accordo di vendita. Dopo tanti tentativi un privato ha mostrato interesse per il complesso, situato amministrativamente a Chieri, ma di proprietà del Fondo Città di Torino.
L’idea, già condivisa con la Soprintendenza Archeologia Belle Arti e Paesaggio, è quella di trasformarla in una struttura ricettiva e una beauty farm, rispettando però quelle caratteristiche architettoniche che l’hanno resa un gioiello amato da tanti piemontesi.
In questi anni, pur versando in grave stato di abbandono (molte parti del tetto sono crollate, esponendo alle intemperie le preziose decorazioni interne), è stato inserito tra i luoghi del cuore del Fai, il fondo per l’Ambiente italiano, e più volte ci sono state interrogazioni e richieste per metterne in sicurezza il patrimonio.
Il comune di Torino ha fatto diversi tentativi per liberarsi di Villa Moglia e mettere un freno al degrado: prima un bando per la concessione a enti o associazioni che se ne potessero assumere il restauro e la gestione, poi, nel 2005, un’asta pubblica con base a 5 milioni di euro, andata deserta e infine la cessione.
Nel 2007 il complesso è entrato a far parte dei 19 edifici del Fondo Città di Torino, lo strumento finanziario con cui il comune mette in vendita gli immobili di cui vuole disfarsi. Compito affidato a Prelios che ora ha trovato un compratore: “Non possiamo divulgare informazioni sull’acquirente e sulla destinazione che avrà. È in corso una trattativa vincolante” fanno sapere dall’azienda. La speranza è che entro fine mese si arrivi alla firma e alla vendita. La cifra è top secret, ma già anni fa si parlava di un deprezzamento consistente per un complesso da oltre 6mila metri quadri. Le voci sulla sua vendita però si sono fatte sempre più insistenti negli ultimi giorni e la preoccupazione per un intervento che ne cancelli la storia e il valore artistico è grande. Così come i rumors sulla realizzazione di una “beauty farm” e di una struttura ricettiva.
“Il fatto che ci sia un interessamento forte è una buona notizia – dice la sovrintendente Luisa Papotti – Qualsiasi intervento dovrà rispettare i vincoli sul bene e noi siamo pronti a vigilare”.
Nei mesi scorsi gli interessati però si sono già confrontati anche sui vincoli e non dovrebbero esserci ostacoli per un progetto che dovrebbe comunque valorizzare ed esaltare il complesso. L’assessore al Patrimonio di Torino, Antonino Iaria, segue con attenzione, ma senza poter intervenire nella questione, “il controllo non è più della Città e la struttura è sul territorio di Chieri” spiega, ma certamente la vendita di Villa Moglia sarebbe un’ottima notizia per l’amministrazione. Dopo le palazzine dell’ex Moi, la Diatto, l’ex mercato dei Fiori e alcuni appartamenti in centro, la cessione della residenza svuota in modo consistente il Fondo Città di Torino. Prima o poi lo strumento finanziario andrà chiuso e se nella pancia ci fossero ancora immobili la Città dovrebbe ripagarli agli investitori. Dopo Villa Moglia invece resta solo Villa Capriglio, un altro gioiello architettonico abbandonato che finora non ha trovato però acquirenti.
Autore: Jacopo Ricca
Vedi allegato: Pag. 9 La Repubblica Torino – 13 Marzo 2021
Fonte: torino.repubblica.it, 13 marzo 2021
Aggiornamento: Villa Moglia a Chieri è stata comprata da un investitore americano. Diventerà una beauty Farm.
Corriere della Sera, 27 mar 2021, Christian Benna

Il castello è documentato dal 1288.
Nel 2010 si trovava ancora in discrete condizioni anche se presentava in facciata sud diverse crepe strutturali.
Nel 2011 una frana ha messo a rischio la sicurezza del castello minacciando le case sottostanti con ”cedimento strutturale di un muraglione di contenimento che congiungeva due corpi del Castello, anch’essi a strapiombo sulla via di accesso della proprietà”. Inoltre si è verificato un movimento della struttura portante, che ha subito un improvviso quanto impressionante abbassamento di molti centimetri ed una conseguente torsione rotatoria verso le sottostanti abitazioni. La porzione in questione, vanta tre piani di carico, per un’altezza di oltre 40 mt.
Il 5 febbraio 2014 una porzione significativa dell’edificio è precipitata sull’abitato, travolgendo la piazza della chiesa e la strada comunale. Tutto questo nonostante fossero state fatte diverse petizioni e appelli al prefetto di Asti, alla proprietà, al sindaco,al curatore del fallimento della Daupher s.r.l.
Dimensioni: 60×30 m circa
Datazione: Periodo bassomedievale (X-XV sec. d.C.)
Stato di conservazione: Pessimo
Segnalazione di degrado-intervento: frana con conseguente crollo di porzione del castello.
Riferimento geografico: 45°0’18,74″N 8°10’15,49″E
Proprietà: Privato
Uso attuale: Abbandono
Giorni e orario di apertura: Chiuso con ordinanza di interdizione e sgombero cautelare per rischio crolo del Sindaco – Gli accessi sono transennati.
Bibliografia:
– BORDONE Renato, Andar per castelli da Asti tutt’intorno, Milvia Torino, 1976
– DEZZANI Edoardo, Frinco, cenni storici, s.n., 1949
– SORISIO Roberto, Ricerche storico-giuridiche su Frinco, Tesi di Laurea, 1979
Data sopralluogo: 23-08-2014
Nome compilatore: Airasca Renato – Associazione: G.A.T.
Invio segnalazione: 9 marzo 2015, vedi allegato: UNIVOCA Segnalazione Frinco
Invio seconda segnalazione: 30 aprile 2018, vedi allegato: UNVC Frinco 2-signed
Delibera Comune di Frinco: 3 maggio 2018, vedi allegato: Com Frinco Delibera Comune 3 mag 2018
Risposta del Comune di Frinco: 7 giugno 2018, vedi allegato: Comune di Frinco
Risposta Soprintendenza 20/07/2018: P 9035 Frinco_Soprintendenza
Sollecito al Comune 7/11/2018: UNVC Frinco 3, 7 nov 2018-signed
Sollecito al Comune 12/06/2020: UNIVOCA Castello Frinco 2020 14 giu 2020-signed
Sollecito al Comune 14/10/2021: UNIVOCA Castello Frinco 14 ott 2021
Aggiornamenti:
– Storia del castello: Il castrum di Frinco
– Frinco, situazione della vicenda a febbraio 2018: Frinco, situazione della vicenda a febbraio 2018
FRINCO (At). Il castello diventa proprietà comunale: ora potrà essere messo in sicurezza.
“Riusciremo ad acquisire l’intero stabile dal suo proprietario [l’antiquario toscano Fungardi Gianfranco NdR], composto non solo dal castello, ma anche dalle scuderie e dal parco circostante” commenta il vicesindaco Luigi Ferrero che negli ultimi due anni ha seguito nel dettaglio la trafila burocratica fino allo scorso 4 maggio, quando il Consiglio comunale ha deliberato l’acquisto del castello.
In un primo momento l’ipotesi era stata l’acquisizione gratuita da parte del Comune del solo maniero. In seguito, grazie ad un accordo tra Comune e Regione Piemonte ed un finanziamento da parte dell’ente regionale, si è deciso di acquistare l’intero possedimento.
L’antico ed imponente castello, che occupa circa 3800 mq di superficie, viene citato per la prima volta in un documento del 10 agosto 1288, in un atto che sanciva i confini fra Calliano e Guadarabbio (abitato che sorgeva presso Castell’Alfero). Appartenne ad importanti famiglie astigiane come i Pelletta, i Turco, i Mazzetti.
Nel corso dell’Ottocento la proprietà passò ai marchesi Camerana, i fratelli Giulio e Eugenio dei Roero di Settime. Nel 1893 il castello passò alla congregazione degli Oblati di San Giuseppe di Asti e il castello divenne la sede estiva per gli studenti del Ginnasio e del Liceo e per i propri novizi.
Negli anni ’60 del Novecento il castello si trasformò addirittura in un allevamento di pollame; alcuni anni dopo però la ditta agricola fallì e il castello venne sequestrato e posto all’asta dal tribunale giudiziario.
Nel 1992 il castello fu acquistato dalla famiglia Pica Alfieri.
Nel corso del 2008 il castello venne venduto alla immobiliare Daupher srl, che verrà dichiarata fallita nel 2012.
Il 5 febbraio 2014 un avancorpo del castello crollò rovinosamente sulle case sottostanti.
Non ci furono vittime perché le abitazioni che si trovavano sotto il castello erano state sgomberate: dal 2011 si erano registrate infatti avvisaglie di smottamenti del terreno.
Chiuso un ciclo se ne apre un altro, in cui si cercherà di dare una seconda vita all’edificio, grazie al finanziamento regionale di circa 550.000 euro utilizzati sia per l’acquisto (210.000 euro) che per la ristrutturazione.
“Innanizitutto sarà necessario attuare un progetto di messa in sicurezza – spiega Ferrero che, candidato alle prossime elezioni amministrative, guarda al futuro – L’idea è farne un importante centro turistico ed un polo museale e culturale”.
Prospettiva condivisa anche dalla sindaca uscente Simona Ciciliato, sicura che il castello diventerà “un gioiello per Frinco e per il territorio”.
Autore: Silvia Musso
Fonte: www.atnews.it, 17 mag 2019
– FRINCO (At). Il castello ha aperto le porte: quale futuro lo attende?
Un parco pubblico aperto alla cittadinanza, una cornice per ricevimenti e banchetti, la location per ospitare un cinema all’aperto, ma anche un centro polifunzionale dalla vocazione sociale e turistica.
Sono queste alcune delle idee di recupero del castello di Frinco presentate in oltre 80 tavole dagli studenti e dai docenti dell’Atelier di Restauro e Strutture del corso di laurea in Architettura del Politecnico di Torino, sabato scorso 23 ottobre, nei giardini antistanti il maniero.
Quaranta tra ragazzi e ragazze divisi in diversi gruppi si sono concentrati dallo scorso marzo sulla parte nord del castello (quella che non è stata interessata dal crollo del 2014). Si tratta di un edificio imponente con i suoi 4 livelli principali (ognuno ha 35 vani), la cui origine è del XIII secolo, ma la cui storia potrebbe essere ancora più antica: si troverebbe infatti su fortificazioni risalenti al X secolo.
“Finalmente lo vedo da vicino” è stato il commento più frequente tra i numerosi visitatori accorsi alla giornata di presentazione dei progetti universitari. C’erano molti residenti di Frinco che non si erano mai avvicinati così tanto, ma anche molte persone dei paesi limitrofi: erano tutti lì, tra la meraviglia generale e le corse dei bambini nei giardini, ad attendere gli interventi di autorità e mondo accademico, curiosi di conoscere le destinazioni future del castello.
“Sono molto contento” ha esordito il sindaco Luigi Ferrero visibilmente emozionato. Per il primo cittadino il castello è una sfida pluriennale. Dalla ricerca di finanziamenti all’acquisizione da parte comunale nel 2019, quello che poteva sembrare il sogno di un romantico si sta rivelando un progetto concreto e realizzabile. Secondo quanto presentato dagli studenti stessi, infatti, il castello potrebbe avere varie destinazioni d’uso e alcuni progetti potrebbero vedere la luce anche nel breve termine. Già da questa settimana sono in programma i lavori per la realizzazione di una scala di accesso.
“Così i giardini potranno ospitare banchetti e ricevimenti” ha dichiarato Ferrero che non dimentica la parte interessata dal crollo e le tre famiglie la cui casa è ancora interdetta dopo sette anni. “La messa in sicurezza è quasi terminata, manca il collaudo finale che sarà fatto nei prossimi giorni. I lavori sono stati finanziati da fondi regionali senza attingere dalle casse comunali”.
“Avete un sindaco coraggioso che ha una visione ampia sul futuro” ha affermato Mario Sacco, presidente della Fondazione CR Asti a cui ha fatto eco Paolo Lanfranco, presidente della Provincia: “Un problema è diventato un’opportunità non solo per Frinco, ma per tutto il territorio”.
“Questo per noi è un primo traguardo, ma anche un punto per una nuova partenza” ha ancora commentato il sindaco che, con il consigliere Davide Riva, aveva deciso nel 2020 di coinvolgere l’Ateneo torinese rappresentato sabato dalla docente Carla Bartolozzi: “La direzione intrapresa dal sindaco e dalla sua amministrazione è quella giusta. L’università non è solo ricerca e didattica ma anche condivisione con il territorio locale di competenze. Chi meglio può avere delle visioni per il futuro dei nostri territori se non i giovani? A breve partirà una seconda edizione di questo studio che si avvarrà di tecnologie all’avanguardia e coinvolgerà studenti del Politecnico di un corso di laurea più avanzato”.
Questi primi progetti sono stati realizzati partendo dalle mappe catastali, ma per iniziare un vero e proprio recupero è necessario avvalersi di tecnologie innovative. “E’ necessario iniziare dalla messa in sicurezza delle coperture, cosa che si può fare solo se si ha ben presente come è strutturato l’edifico sottostante – è entrato nel dettaglio l’ingegner Marco Roggero – Per questo serve un rilievo topografico all’avanguardia con tecniche sofisticate”
Da diverse settimane è infatti iniziato, finanziato dalla Fondazione Cassa di Risparmio di Asti, questo tipo di rilievo che vede impegnato Roggero tre volte a settimana: “Si tratta di una sorta di TAC per sapere come sta il paziente-castello. Dobbiamo scoprire e capire come sono fatti gli interrati, i sottotetti. Stiamo iniziando ad orientarci e a conoscere questo castello che ogni giorno svela qualcosa in più di sè: particolari architettonici nuovi, locali che non si pensava esistessero. Siamo di fronte ad uno dei castelli più grandi di tutto l’Astigiano che è il risultato di oltre mille anni di modifiche”.
Quali sorprese riserverà ancora questo castello? Non resta che aspettare i risultati dei rilievi e i nuovi studi. Intanto un ringraziamento è arrivato anche dai cittadini più giovani, i bambini frequentanti la scuola primaria: i loro disegni e le loro speranze di riappropriarsi di una parte importante del paese, hanno trovato spazio nelle sale interne aperte per l’occasione.
Autore: Silvia Musso
Fonte: www.atnews.it, 26 ott 2021

Il bassorilievo corrisponde al gesso presente nella gipsoteca delle opere di Bistolfi che occupa il piano terreno del Museo Civico di Casale. L’opera decora la tomba della famiglia Gariglio, i cui discendenti vivono tuttora a La Loggia ma, interpellati per sollecitare un restauro, hanno reagito negativamente e scortesemente.
E’ stato interpellato l’ufficio vincoli della Sovrintendenza che ha consigliato di richiedere, in prima battuta, un intervento del Comune, proprietario dell’area cimiteriale, presso i titolari della tomba di famiglia.
Dimensioni: QUASI NATURALI
Datazione: PRIMI DECENNI DEL XX SECOLO
Autore: LEONARDO BISTOLFI
Segnalazione di degrado-intervento: MUFFE E COLATURE
Giorni e orario di apertura: ORARI DEL CIMITERO
Materiale: Marmo
Tecnica: Bassorilievo
Stato di conservazione: Cattivo
Info:
Data sopralluogo: 09-09-2011
Nome compilatore: Mario Busatto
Associazione: Gruppo Archeologico Torinese
PER MOTIVI DI OPPORTUNITA’ SI RITIENE DI TENERE IN SOSPESO LA SEGUENTE SCHEDA
Il Monasterii sancte Fidis de Cabagnoli, alle strette dipendenze dal Monastero francese di Sainte Foy de Conques, era già presente nel XII secolo sul territorio controllato dai Marchesi del Monferrato, come attestano i documenti sinora esaminati.
In un documento del 1164, l’imperatore Federico Barbarossa conferma allo zio Guglielmo il Vecchio, il possesso delle terre di Cavagnolo, in cui si menziona l’esistenza del Priorato di Santa Fede. Compare regolarmente negli elenchi delle chiese vercellesi dal 1298 al 1440. Nel 1372, il complesso raggiunge il massimo splendore, grazie alle donazioni del marchese Giovanni II di Monferrato. Nel corso del Cinquecento, l’abbazia subisce alterne vicende: declassata a chiesa campestre e cimiteriale, è abbandonata in pessimo stato di conservazione. Alla metà del Settecento, il priorato è incamerato alla diocesi di Acqui e il “palazzo” viene usato come residenza estiva da monsignore Roero di Cortanze.
Restituito nuovamente alla diocesi di Casale, si continua il programma di lavori necessari al mantenimento della struttura.
Alla metà dell’Ottocento, a seguito della legge di soppressione degli ordini religiosi, passa allo Stato che lo vende, al pubblico incanto, a privati che lo usano come stalla.
Negli anni settanta del XIX secolo, E. Arborio Mella constatandone il degrado, attraverso suoi studi sistematici concentra l’attenzione al complesso romanico piemontese che ancora adesso risulta tra quelli più dibattuti dagli studiosi e critici del settore.
Nel 1881 è acquistato da don G.B. Frattini del Cottolengo e nel 1886 il Ministero dell’Istruzione Pubblica lo annovera tra i monumenti nazionali per le sue notevoli peculiarità storico artistiche.
Nel 1895, il complesso passa alla Congregazione dei Padri Maristi, che lo utilizza come scuola Apostolica e centro di accoglienza, fino al 2010.
Attualmente la chiesa è della Parrocchia di Cavagnolo della Diocesi di Casale, ne garantisce l’apertura la Comunità Siloe e la stessa Amministrazione Comunale la valorizza attraverso iniziative e progetti culturali e turistici.
La chiesa è a tre navate con una sola abside centrale semicircolare; le altre due piccole absidi laterali sono documentate ancora nel 1724. Il transetto non sporge e la torre campanaria è a pianta quadrata. La tessitura muraria è costituita da blocchi di pietra e mattoni.
Il prospetto sud è completamente addossato e inglobato dalla costruzione recente che conserva all’interno pochi elementi del palazzo vescovile.
Al fianco nord si accede da un cancelletto e si possono notare particolari dell’antica struttura e l’ammorsamento della nuova sacrestia con i muri originari dell’abside.
La facciata, a salienti, presenta un magnifico portale d’ingresso, recentemente restaurato ricucendo la lesione sull’architrave scolpito, già monitorata nel tempo dalla Soprintendenza: al disopra una bifora degli anni novanta del XIX secolo e gli archetti pensili sotto le falde del tetto. L’ingresso con il sovrastante arco a tutto sesto fortemente strombato è impostato su semicolonne e presenta la prima fascia divisa da intrecci in dodici campi, in cui sono scolpite figure zoomorfe, mostruose e geometriche, con una croce al colmo dell’arco.
Nella lunetta è raffigurato un Cristo Pantocratore inserito in una mandorla sorretta da due angeli. Negli sguinci del portale vi sono colonnine con capitelli scolpiti sempre in pietra.
Sopra i capitelli delle tozze colonne poste all’estremità, impreziositi da dettagli scolpiti, appaiono bassorilievi raffiguranti due grifoni. L’apparato scultoreo unisce al tipico repertorio romanico di mostri e figure stravaganti il classicismo del mondo romano e paleocristiano.
Le ultime indagini hanno rilevato la presenza di due cantieri nello stesso periodo con lapicidi di differente capacità di realizzazione di elementi artistici nella zona di facciata e dell’abside.
L’interno presenta l’aula divisa in tre navate: la maggiore con volta a botte originaria mentre le due piccole navate laterali sono con volte a crociera e sono separate da pilastri con semicolonne addossate e sormontate da magnifici capitelli in pietra. Questi sono scolpiti con soggetti a tema vegetale, figure animali e teste umane. Il catino absidale ha tre monofore e al centro un altare frutto di accorpamento di parti diverse.
Nella campata terminale della navata centrale di destra, si nota l’affresco della Madonna in trono, il Bambino e due Santi, unico inserimento pittorico ottocentesco.
L’alternanza del bianco della pietra e il rosso del mattone con le cornici modanate a billettes o damier arricchiscono l’ambiente, nella sua suggestiva armonia e dessenzialità.
Si possono notare, sulle pietre della facciata, alcune antiche iscrizioni incomplete coperte da colonne, o da elementi aggettanti, tra cui due dedicate a un certo priore Rolando.
Info:
Via S. Lorenzo, 92, 10020 Cavagnolo TO
Telefono: 011 915 1157
Riferimento geografico: A circa 2 km dall’abitato, su una propaggine collinare.
Uso attuale: da tempo non più officiata dai padri Maristi, ora affidata al parroco di Cavagnolo. Diocesi di Casale Monferrato.
Data sopralluogo: 19-6-2011– controllo successivo: febbraio 2015 – 25 mar 2020
DAL SOPRALLUOGO DEL 25 MARZO 2020 RISULTA SUPERATA LA SITUAZIONE DI DEGRADO A SEGUITO DI INTERVENTI DI RESTAURO
Depliant illustrativo dell’Abbazia: Abbazia Santa Fede
Galleria immagini situazione attuale, a cura di Sara Inzerra:
Il pilone votivo, ubicato lungo la strada comunale verso il cimitero, ha struttura in muratura di mattoni, in parte intonacata e coperta da coppi.
La pianta è triangolare. Il lato rivolto a nord, verso la campagna, è privo di decorazioni, gli altri due presentano affreschi cinquecenteschi (attribuiti a Pascale Oddone da Baiocco e Galante Garrone) racchiusi in due nicchie inquadrate da lesene decorate.
Nella nicchia che dà sulla pubblica via è affrescata la Vergine con il Cristo morto tra S. Sebastiano e S. Rocco, sui piedritti interni e sull’archivolto sono riprodotti motivi decorativi a candelabro e rosoni; in alto sembra sia disegnato il Giudizio Universale.
Le lesene esterne sono abbellite con grottesche, S. Cristoforo e S. Antonio.
L’altra nicchia, rivolta verso un viottolo campestre, presenta l’Assunzione di Maria Vergine circondata da angioletti, con sopra il Cristo e in basso gli Apostoli.
I piedritti e l’archivolto sono decorati a candelabro e rosoni; sopra l’arco S. Giorgio e la Principessa; sulle lesene laterali S. Giovanni Battista e forse S. Francesco, con putti e grottesche.
Riferimenti storici: nel corso del XVI secolo il territorio del saviglianese è conteso fra il Marchese di Saluzzo, Francesco, alleato del re di Francia, Francesco I, e il duca di Savoia Ca
rlo III, alleato con l’imperatore Carlo V. Nel 1548 finisce il marchesato di Saluzzo per estinzione della dinastia, il territorio viene occupato dal re di Francia Enrico II. Negli anni successivi continua la guerra tra Francia e Savoia, con alterne vicende, fino al trattato di Lione del 1601, in base al quale il marchesato viene definitivamente annesso ai domini sabaudi.
Autore degli affreschi: Secondo Rosalba Amerio i dipinti sono “opera di pittore piemontese, dotato di buona cultura, abilità tecnica ed entrato ormai nell’orbita rinascimentale per l’ampliarsi delle proporzioni delle figure, per lo studio della prospettiva, per l’inquadratura equilibrata della composizione.
Databili fra il primo e il secondo quarto del XVI secolo, presentano stretti rapporti con l’arte di Oddone Pascale, specie con la sua pala di Staffarda (datata 1531) e più ancora con quella di San Giovanni di Saluzzo (datata 1535). Nelle piccole scene in alto con il San Giorgio e il Giudizio si nota una maggiore intromissione di elementi narrativi e decorativi, di maggior movimento quale si ritrova in tutte le piccole composizioni delle opere di Oddone Pascale.
Stato di conservazione del pilone:
Lo stato era molto degradato, ma nel 2012-2013 è stato completamente restaurato nella muratura, nella copertura e sono state risanate le fondazioni per eliminare l’umidità di risalita che ha danneggiato la parte inferiore degli affreschi. Lo spazio attorno al pilone è stato riallestito.
Sotto diretta sorveglianza e indicazioni delle competenti Soprintendenze, la pellicola pittorica è stata consolidata e poi fissata; dopo accurata ripulitura, si è proceduto all’integrazione delle lacune di intonaco presenti all’interno della superficie affrescata e poi all’integrazione pittorica a tono e/o a sottotono con colori ad acquerello e aggiunta di legante per esterni e stesura finale di protettivo idrorepellente.
Bibliografia:
– VACCHETTA G., Ruffia ieri, ediz. a cura del comune di Cuffia, Banca CRS, Fondazione CRS-Cassa di Risparmio Savigliano
– R. AMERIO, Affreschi e dipinti cinque e seicenteschi nel saluzzese, in Bollettino della Società Piemontese di Archeologia e di Belle Arti, nuova serie, anni XIV-XV-1960-1961.
– BAIOCCO S., Oddone Pascale e l’eredità di Gandolfino da Roreto nel Piemonte meridionale, in Intorno a Macrino d’Alba. Aspetti e problemi di cultura figurativa del Rinascimento in Piemonte. Atti della Giornata di studi, Alba… 2001, Savigliano 2002, pp. 103-116
– GALANTE GARRONE G., Attorno a una Madonna. Il restauro degli affreschi dedicati a s. Giovanni Evangelista a Centallo, in Bollettino della Società per gli studi storici, archeologici e artistici della Provincia di Cuneo, 1994, vol. 111, p. 26 n. 11
Internet: Intervento di restauro http://studiobrunettiarchitettura.com/architettura/pilone-votivo-di-ruffia-cn.html
Data segnalazione: 9 aprile 2019
Nome segnalatore: Angela Crosta